オールハウス株式会社 > 東広島市西条町田口 富士見台No.2
「東広島市西条町田口 富士見台No.2」のここがイチオシ。建物面積は30坪以上で開放感があります。トイレが2ヶ所にあるので複数人でも快適に暮らせます。適正な資産価値を評価できる長期優良住宅となっています。東広島市や山陽新幹線東広島付近でなら、お客様に合った一戸建てがきっと見つかります。まずはご希望条件をスタッフまでお伝え下さい。
※地図上に表示される物件の位置は付近住所に所在することを表すものであり、実際の物件所在地とは異なる場合がございます。
| 物件名 | 東広島市西条町田口 富士見台No.2 | ||
|---|---|---|---|
| 所在地 | 広島県東広島市西条町田口 | ||
| 交通 |
|
||
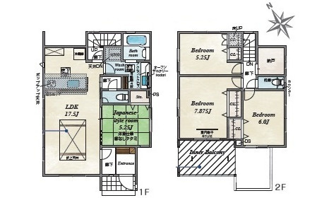
| 間取り/詳細 |
4LDK 1F 17.5LDK 5.25和 2F 7.875洋 6洋 5.25洋 納戸 トイレ |
||
| 接道状況 | -(南 公道 4.2m) | ||
| 価格 | 2,590万円 | 主要採光面 | - |
| 建物面積/坪数 | 112.61㎡/ 34.06坪 | 土地面積/坪数 | 168.27㎡/ 50.90坪 |
| 種別/構造 | 新築一戸建/木造 | 築年月(築年数) | 2026年 1月(予定) |
| 階建 | 2階建 | 地目 | - |
| 駐車場/料金 | 有(3台)/0円 3台可 | 地勢 | - |
| 私道面積 | - | セットバック | - |
| 都市計画 | 市街化区域 | 用途地域 | 第一種低層住居専用 |
| 建ぺい率/容積率 | 50%/100% | 土地権利 | 所有権 |
| 総区画数 | 1戸 | 借地料/借地期間 | -/- |
| 現況 | 未完成 | その他の法令上の制限 | - |
| 取引態様/引渡時期 | 一般媒介/相談 | 建築確認番号 | 第R07SHC116670号 |
| 設備条件 |
|
||
| 備考 |
制振ダンパー 耐震等級3の住宅性能評価 長期優良住宅 エネルギー消費性能星3つ 無料点検実施(引渡後3ヶ月・2年・5年・10年) オール電化 食洗乾燥機 浴室換気乾燥機 LED照明(玄関・廊下・キッチン等) 収納充実プラン 樹脂複合サッシ バルコニー約8.28㎡含む 板城小学校 向陽中学校 |
||
| QRコード |
このQRコードを読み取ることで、ケータイでも物件情報を確認できます。 |
||






















(※元利均等方式 金利5.00%まで ※返済年数5~50年まで入力できます)
(※ボーナスは年2回で計算しています。1000万円まで入力できます)
