オールハウス株式会社 > 広島市南区東雲3丁目
使い勝手が良いシステムキッチンがある物件です。環境にも優しいオール電化住宅なら、毎日が充実した快適な生活を送れると思います。戸建て物件をご検討なら、コチラの新築の物件をご覧ください。ベタ基礎による建築の為、床下からの嫌な湿気も気になりません。広島市南区には多種多様な一戸建てがございますので、マイホームの購入をお考えなら、ぜひ当社までご連絡ください。お待ちしております。
※地図上に表示される物件の位置は付近住所に所在することを表すものであり、実際の物件所在地とは異なる場合がございます。
| 物件名 | 広島市南区東雲3丁目 | ||
|---|---|---|---|
| 所在地 | 広島県広島市南区東雲3丁目 | ||
| 交通 |
|
||
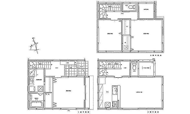
| 間取り/詳細 |
3LDK 1F 8洋 洗面 浴室 2F 16.1LDK トイレ 3F 8洋 6洋 2納戸 トイレ |
||
| 接道状況 | -(東 公道 7.8m) | ||
| 価格 | 4,980万円 | 主要採光面 | - |
| 建物面積/坪数 | 105.99㎡/ 32.06坪 | 土地面積/坪数 | 76.38㎡/ 23.10坪 |
| 種別/構造 | 新築一戸建/木造 | 築年月(築年数) | 2026年 5月(予定) |
| 階建 | 3階建 | 地目 | - |
| 駐車場/料金 | 有/ 可 | 地勢 | 平坦 |
| 私道面積 | - | セットバック | - |
| 都市計画 | 市街化区域 | 用途地域 | 準工業 |
| 建ぺい率/容積率 | 60%/200% | 土地権利 | 所有権 |
| 総区画数 | 1戸 | 借地料/借地期間 | -/- |
| 現況 | 未完成 | その他の法令上の制限 | - |
| 取引態様/引渡時期 | 一般媒介/相談 | 建築確認番号 | 第HP16-4096533号 |
| 設備条件 |
|
||
| 備考 |
木造在来工法 省令準耐火構造 ベタ基礎 オール電化住宅 フラット35S(金利Bプラン)対応 エコキュート IHクッキングヒーター 食器洗浄乾燥機 居室窓Low-Eペアガラス 玄関電気錠システム EV自動車用回路 浴室換気乾燥暖房機 トイレ洗浄便座 徒歩圏内にスーパーやドラッグストア、飲食店が充実しています 平地 比治山小学校 段原中学校 |
||
| QRコード |
このQRコードを読み取ることで、ケータイでも物件情報を確認できます。 |
||
























(※元利均等方式 金利5.00%まで ※返済年数5~50年まで入力できます)
(※ボーナスは年2回で計算しています。1000万円まで入力できます)
