オールハウス株式会社 > 広島市安佐南区山本6丁目
屋根裏収納がついた物件でして、多くのお問い合わせをいただいております。新しい生活に心機一転、新築の戸建て物件はいかがでしょうか。車が2台も駐車でき、来客が来ても置けるので、便利です。全居室が洋室になっていて、綺麗な床になっているんです。当社で不動産を探しませんか。新しいお住まいで、これまで生活をより豊かなものにしていきましょう。ぜひ当社の利用をご検討くださいませ。
※地図上に表示される物件の位置は付近住所に所在することを表すものであり、実際の物件所在地とは異なる場合がございます。
| 物件名 | 広島市安佐南区山本6丁目 | ||
|---|---|---|---|
| 所在地 | 広島県広島市安佐南区山本6丁目 | ||
| 交通 |
|
||
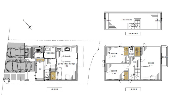
| 間取り/詳細 |
3LDK 1F 9.8LDK 2F 9.8洋 4.9洋 4.9洋 トイレ 小屋裏収納 |
||
| 接道状況 | -(北西 私道 4.0m) | ||
| 価格 | 2,395万円 | 主要採光面 | - |
| 建物面積/坪数 | 78.31㎡/ 23.68坪 | 土地面積/坪数 | 89.02㎡/ 26.92坪 |
| 種別/構造 | 新築一戸建/木造 | 築年月(築年数) | 2024年 12月(新築) |
| 階建 | 2階建 | 地目 | - |
| 駐車場/料金 | 有(2台)/ 可 | 地勢 | - |
| 私道面積 | - | セットバック | - |
| 都市計画 | 市街化区域 | 用途地域 | 第一種低層住居専用 |
| 建ぺい率/容積率 | 50%/100% | 土地権利 | 所有権 |
| 総区画数 | 1戸 | 借地料/借地期間 | -/- |
| 現況 | 完成済み | その他の法令上の制限 | - |
| 取引態様/引渡時期 | 一般媒介/相談 | 建築確認番号 | 第--号 |
| 設備条件 |
|
||
| 備考 | 「広島市安佐南区山本6丁目」:広島市安佐南区エリアの新居にピッタリ。一生に一度のマイホーム探しは、ぜひ新築戸建てで。こちらは閑静な住宅地に立地する物件です。屋根裏収納も付いているので、収納に不便を感じる事はありません。当社スタッフが広島市安佐南区での住まい探しをサポート致しますので、まずはお気軽にお問い合わせください。その際、ご希望条件なども併せてお伝えいただけるとよりスムーズです。 | ||
| QRコード |
このQRコードを読み取ることで、ケータイでも物件情報を確認できます。 |
||























(※元利均等方式 金利5.00%まで ※返済年数5~50年まで入力できます)
(※ボーナスは年2回で計算しています。1000万円まで入力できます)
