オールハウス株式会社 > 呉市焼山松ヶ丘2丁目 中古戸建
中古戸建て物件でリーズナブルかつ快適な生活を送りましょう。閑静な住宅地にある、静かな住宅環境で暮らしてみませんか。開放感あふれる爽やかな雰囲気の角地物件でございます。気になるイチオシ物件情報:「呉市焼山松ヶ丘2丁目 中古戸建」。呉線天応近辺で戸建て情報をお探しの方は、呉市の情報数が豊富な当社にお任せ下さい。ご利用をお待ちしております。
※地図上に表示される物件の位置は付近住所に所在することを表すものであり、実際の物件所在地とは異なる場合がございます。
| 物件名 | 呉市焼山松ヶ丘2丁目 中古戸建 | ||
|---|---|---|---|
| 所在地 | 広島県呉市焼山松ヶ丘2丁目 | ||
| 交通 |
|
||
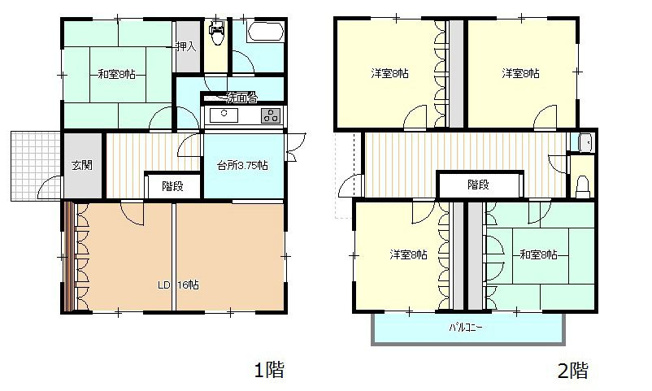
| 間取り/詳細 |
5LDK 1F 3.75K 16LD 8和 2F 8和 8洋 8洋 8洋 |
||
| 接道状況 | -(北 5.5m)(西 4.0m) | ||
| 価格 | 997万円 | 主要採光面 | - |
| 建物面積/坪数 | 141.98㎡/ 42.94坪 | 土地面積/坪数 | 314.00㎡/ 94.98坪 |
| 種別/構造 | 中古一戸建/木造 | 築年月(築年数) | 1979年 5月(築46年) |
| 階建 | 2階建 | 地目 | - |
| 駐車場/料金 | -/ 可 | 地勢 | - |
| 私道面積 | - | セットバック | - |
| 都市計画 | - | 用途地域 | 第一種低層住居専用 |
| 建ぺい率/容積率 | 50%/100% | 土地権利 | 所有権 |
| 総区画数 | - | 借地料/借地期間 | -/- |
| 現況 | 空家 | その他の法令上の制限 | - |
| 取引態様/引渡時期 | 一般媒介/相談 | 建築確認番号 | - |
| 設備条件 |
|
||
| 備考 | 5LDK 角地 | ||
| QRコード |
このQRコードを読み取ることで、ケータイでも物件情報を確認できます。 |
||












(※元利均等方式 金利5.00%まで ※返済年数5~50年まで入力できます)
(※ボーナスは年2回で計算しています。1000万円まで入力できます)
