オールハウス株式会社 > 呉市焼山中央5丁目 焼山第2労住協 No.2
オール電化なら火を使わないのでお子様がいても安心です。トイレが2ヶ所にあるので複数人でも快適に暮らせます。クローゼット付きの物件です。こだわりのある方も多い、新築の戸建て物件となっております。呉市に特化した当社には、不動産情報はもちろんのこと、地域情報にも詳しいスタッフが在籍しております。きっと不動産探しの強い味方となるでしょう。
※地図上に表示される物件の位置は付近住所に所在することを表すものであり、実際の物件所在地とは異なる場合がございます。
| 物件名 | 呉市焼山中央5丁目 焼山第2労住協 No.2 | ||
|---|---|---|---|
| 所在地 | 広島県呉市焼山中央5丁目 | ||
| 交通 |
|
||
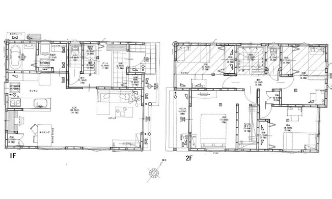
| 間取り/詳細 |
4LDK 1F 19.7LDK 2F 7洋 5.3洋 5.3洋 5.3洋 WIC トイレ |
||
| 接道状況 | -(北東 公道 5.0m) | ||
| 価格 | 2,500万円 | 主要採光面 | - |
| 建物面積/坪数 | 103.92㎡/ 31.43坪 | 土地面積/坪数 | 119.95㎡/ 36.28坪 |
| 種別/構造 | 新築一戸建/木造 | 築年月(築年数) | 2023年 6月(新築) |
| 階建 | 2階建 | 地目 | - |
| 駐車場/料金 | -/ 3台可 | 地勢 | - |
| 私道面積 | - | セットバック | - |
| 都市計画 | - | 用途地域 | 第一種低層住居専用 |
| 建ぺい率/容積率 | 50%/100% | 土地権利 | 所有権 |
| 総区画数 | 1戸 | 借地料/借地期間 | -/- |
| 現況 | 完成済み | その他の法令上の制限 | - |
| 取引態様/引渡時期 | 一般媒介/相談 | 建築確認番号 | 第第R04認広建セ00831号号 |
| 設備条件 |
|
||
| 備考 |
駐車3台可 陽当たり良好 オール電化住宅 国産太陽光発電システム4.0kwh搭載予定 ウォークインクローゼット 広々LDK19.7帖 昭和中央小学校 昭和中学校 |
||
| QRコード |
このQRコードを読み取ることで、ケータイでも物件情報を確認できます。 |
||






















(※元利均等方式 金利5.00%まで ※返済年数5~50年まで入力できます)
(※ボーナスは年2回で計算しています。1000万円まで入力できます)
