オールハウス株式会社 > 岩国市南岩国町2丁目
岩国市エリアでの住まいなら、住み心地も快適な「岩国市南岩国町2丁目」はいかがでしょうか。経済的なメリットも大きい、中古の戸建て物件となっております。広くて嬉しい建物面積も30坪以上あります。余裕のある15帖以上のLDKで、日々の生活にゆとりが出ます。岩国市で新生活を始めるのであれば、不動産情報を豊富に扱う当社までご連絡ください。まずはお問い合わせからお待ちしております。
※地図上に表示される物件の位置は付近住所に所在することを表すものであり、実際の物件所在地とは異なる場合がございます。
| 物件名 | 岩国市南岩国町2丁目 | ||
|---|---|---|---|
| 所在地 | 山口県岩国市南岩国町2丁目 | ||
| 交通 |
|
||
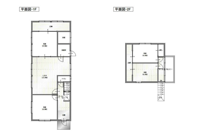
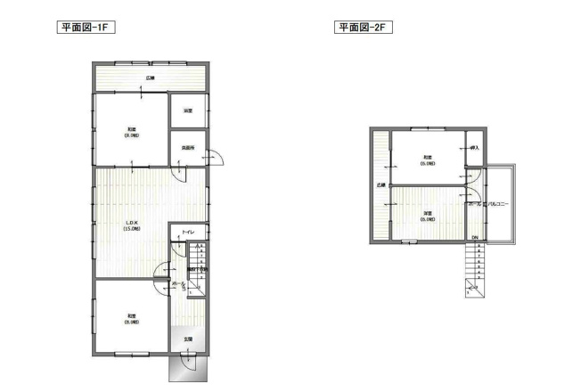
| 間取り/詳細 |
4DK 1F:16LDK、6和、6和、2縁側、2F:6和、6和 |
||
| 接道状況 | 一方(北 公道 4.0m) | ||
| 価格 | 280万円 | 主要採光面 | 北西 |
| 建物面積/坪数 | 109.02㎡/ 32.97坪 | 土地面積/坪数 | 167.04㎡/ 50.52坪 |
| 種別/構造 | 中古一戸建/木造 | 築年月(築年数) | 1975年 1月(築50年) |
| 階建 | 2階建 | 地目 | 宅地 |
| 駐車場/料金 | 有(1台)/0円 堀込車庫1台(駐車場高1.73m~1.88m・幅2.53m) | 地勢 | - |
| 私道面積 | - | セットバック | - |
| 都市計画 | 市街化区域 | 用途地域 | 第一種住居 |
| 建ぺい率/容積率 | 60%/200% | 土地権利 | 所有権 |
| 総区画数 | 1戸 | 借地料/借地期間 | -/- |
| 現況 | 空家 | その他の法令上の制限 | - |
| 取引態様/引渡時期 | 専任媒介/相談 | 建築確認番号 | - |
| 設備条件 |
|
||
| 備考 | 岩国市南岩国町2丁目:山陽本線南岩国駅にも近くて便利。こちらの物件は中古戸建物件です。全居室6帖以上なら、家族連れでも広々と使えます。広くて嬉しい建物面積も30坪以上あります。当社スタッフが岩国市での住まい探しをサポート致しますので、まずはお気軽にお問い合わせください。その際、ご希望条件なども併せてお伝えいただけるとよりスムーズです。 | ||
| QRコード |
このQRコードを読み取ることで、ケータイでも物件情報を確認できます。 |
||














(※元利均等方式 金利5.00%まで ※返済年数5~50年まで入力できます)
(※ボーナスは年2回で計算しています。1000万円まで入力できます)
