オールハウス株式会社 > エーデル戸坂
「エーデル戸坂」:広島市東区エリアの新居にピッタリ。広島戸坂新町郵便局まで166mです。バス停から徒歩3分以内なので、どこに行くのも便利な立地です。芸備線戸坂近辺で快適な暮らしをお求めなら、地域に詳しい当社にご依頼下さい。経験豊富な当社スタッフがしっかりとサポートいたします。
※地図上に表示される物件の位置は付近住所に所在することを表すものであり、実際の物件所在地とは異なる場合がございます。
| 物件名 | エーデル戸坂 | ||
|---|---|---|---|
| 所在地 | 広島県広島市東区戸坂新町1丁目 | ||
| 交通 |
|
||
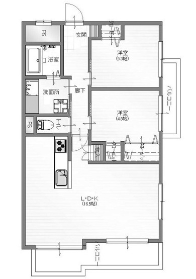
| 間取り/詳細 |
2LDK 16.5LDK 5.3洋 4.8洋 |
||
| 価格 | 1,680万円 | 管理費+共益費 | 5,870円 |
| 専有面積 | 59.18㎡ | バルコニー面積 | 8.19㎡ |
| 種別/構造 | 中古マンション/鉄筋コンクリート | 築年月(築年数)/方位 | 1988年 12月(築37年)/- |
| 所在階/階建 | 3階/ 6階建 | 地勢 | 高台 |
| 修繕積立金 | 6,380円 | 駐車場/料金 | 空有/ 5000円/月 |
| 管理組合有無 | - | 管理形態 | 管理会社に全部委託 |
| 管理方式 | 巡回 | 管理会社 | (株)合人社計画研究所 |
| 棟総戸数 | 37戸 | 用途地域 | 第二種中高層住居専用 |
| 土地権利 | 所有権 | 国土法届出要否 | 不要 |
| 取引態様 | 一般媒介 | 現状 | 空家 |
| 引渡し | 即時 | 建築確認番号 | - |
| 設備条件 |
|
||
| 備考 |
2022年10月:3DKを2LDKにフルリノベーション ホームステージング済 16帖のリビングは陽当り良好 自然素材使用 全居室フローリング 東南向き 対面式キッチン 角住戸 築時・増改築時の設計図 システムキッチン 全居室収納 閑静な住宅地 ワイドバルコニー 南面バルコニー オートバス 温水洗浄便座 通風・眺望良好 高台に立地 東浄小学校 戸坂中学校 |
||
| QRコード |
このQRコードを読み取ることで、ケータイでも物件情報を確認できます。 |
||






















(※元利均等方式 金利5.00%まで ※返済年数5~50年まで入力できます)
(※ボーナスは年2回で計算しています。1000万円まで入力できます)
