オールハウス株式会社 > 広島市安佐北区可部東2丁目 売アパート2棟
売2棟 ①4LDK×1戸+1K×18戸 ②1K×8戸
※地図上に表示される物件の位置は付近住所に所在することを表すものであり、実際の物件所在地とは異なる場合がございます。
| 所在地 | 広島県広島市安佐北区可部東2丁目 | ||
|---|---|---|---|
| 交通 |
|
||
| 間取り/詳細 |
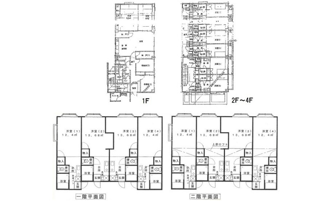
- 4LDK×1戸+1K×18戸 1K×8戸 |
||
| 価格 | 1億1,700万円 | 管理費+共益費 | - |
| ローン支払い目安 | 24.8万円/月 | 利回り | - |
| 建物面積 | 778.79㎡ | 土地面積 | 646.61㎡ |
| 地目 | - | 地勢 | - |
| 種別/構造 | 一棟マンション/鉄筋コンクリート | 築年月(築年数)/方位 | 1986年 1月(築39年)/- |
| 階建 | - | 接道状況 | -(北東 公道 4.0m)(北西 公道 4.0m) |
| 都市計画 | 市街化区域 | 用途地域 | 第二種中高層住居専用 |
| 建ぺい率 | 60% | 容積率 | 200% |
| 修繕積立金 | - | 駐車場/料金 | -/ 可 |
| 管理組合有無 | - | 管理形態 | - |
| 管理方式 | - | 管理会社 | - |
| 棟総戸数 | - | 土地権利 | 所有権 |
| 取引態様 | 一般媒介 | 現状/引渡し | 賃貸中/相談 |
| 国土法届出要否 | 不要 | ||
| その他の法令上の制限 | - | ||
| 設備条件 |
|
||
| 備考 |
売2棟 ①4LDK×1戸+1K×18戸 ②1K×8戸 現状収入:888,500円/月 10,662,000円/年 利回り8.5% 満室収入:956,000円/月 11,472,000円/年 利回り9.17% ①RC造陸屋根4階建、596.61㎡ 昭和61年1月築 ②木造スレート葺2階建、182.18㎡、平成4年2月築 P4台+4LDK部分4〜5台駐車可能 宅配ボックス Wi-Fi オートロック 表記建物面積は2棟合計面積 2023年7月現在2戸空室 |
||
| QRコード |
このQRコードを読み取ることで、ケータイでも物件情報を確認できます。 |
||






















(※元利均等方式 金利5.00%まで ※返済年数5~50年まで入力できます)
(※ボーナスは年2回で計算しています。1000万円まで入力できます)
