オールハウス株式会社 > 広島市安佐南区川内2丁目 No.5
2駅利用できる場所にあるので利便性が高いです。電力は災害が起きても復旧が早いので、防災対策にもおすすめです。新築戸建てはみんなの夢です。南側道路に面した物件です。お客様によって希望とする条件は異なります。当社スタッフは希望条件をお伺いした上で、不動産を紹介しております。
画像をクリックして視点を操作
※地図上に表示される物件の位置は付近住所に所在することを表すものであり、実際の物件所在地とは異なる場合がございます。
| 物件名 | 広島市安佐南区川内2丁目 No.5 | ||
|---|---|---|---|
| 所在地 | 広島県広島市安佐南区川内2丁目 | ||
| 交通 |
|
||
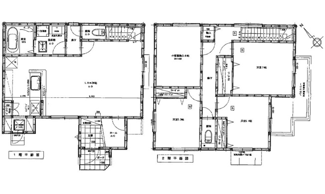
| 間取り/詳細 |
3LDK 1F 20LDK パントリー 2F 7洋 5.4洋 5.3洋 トイレ 6小屋裏物入 |
||
| 接道状況 | -(南 2.4m) | ||
| 価格 | 4,080万円 | 主要採光面 | - |
| 建物面積/坪数 | 106.61㎡/ 32.24坪 | 土地面積/坪数 | 106.17㎡/ 32.11坪 |
| 種別/構造 | 新築一戸建/木造 | 築年月(築年数) | 2024年 4月(新築) |
| 階建 | 2階建 | 地目 | 宅地 |
| 駐車場/料金 | 有(1台)/- | 地勢 | 平坦 |
| 私道面積 | - | セットバック | - |
| 都市計画 | 市街化区域 | 用途地域 | 第一種住居 |
| 建ぺい率/容積率 | 60%/200% | 土地権利 | 所有権 |
| 総区画数 | 1戸 | 借地料/借地期間 | -/- |
| 現況 | 完成済み | その他の法令上の制限 | - |
| 取引態様/引渡時期 | 一般媒介/相談 | 建築確認番号 | 第R05認広建セ00697号 |
| 設備条件 |
|
||
| 備考 |
オール電化 屋根:カラーベスト葺 外壁:防火サイディング |
||
| QRコード |
このQRコードを読み取ることで、ケータイでも物件情報を確認できます。 |
||






















(※元利均等方式 金利5.00%まで ※返済年数5~50年まで入力できます)
(※ボーナスは年2回で計算しています。1000万円まで入力できます)
