オールハウス株式会社 > 東広島市鏡山3丁目No.2
多くの方からご好評頂いている東広島市鏡山3丁目No.2のご紹介です。便利なスーパー「鮮Do!エブリイ 西条御薗宇店」まで269mです。トイレが2ヶ所にあるので複数人でも快適に暮らせます。当社スタッフとマイホームを探しましょう。東広島市や山陽新幹線東広島付近での住まい探しを全力でサポート致します。まずはお気軽にご連絡ください。
※地図上に表示される物件の位置は付近住所に所在することを表すものであり、実際の物件所在地とは異なる場合がございます。
| 物件名 | 東広島市鏡山3丁目No.2 | ||
|---|---|---|---|
| 所在地 | 広島県東広島市鏡山3丁目 | ||
| 交通 |
|
||
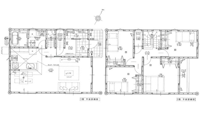
| 間取り/詳細 |
4LDK 1F 20LDK SIC 2F 7.3洋 5.3洋 5.3洋 5.3洋 トイレ |
||
| 接道状況 | -(北 公道 6.6m) | ||
| 価格 | 3,080万円 | 主要採光面 | - |
| 建物面積/坪数 | 102.54㎡/ 31.01坪 | 土地面積/坪数 | 136.53㎡/ 41.30坪 |
| 種別/構造 | 新築一戸建/木造 | 築年月(築年数) | 2023年 12月(新築) |
| 階建 | 2階建 | 地目 | - |
| 駐車場/料金 | -/ 3台可 | 地勢 | - |
| 私道面積 | - | セットバック | - |
| 都市計画 | 市街化区域 | 用途地域 | 第二種住居 |
| 建ぺい率/容積率 | 60%/200% | 土地権利 | 所有権 |
| 総区画数 | 1戸 | 借地料/借地期間 | -/- |
| 現況 | 完成済み | その他の法令上の制限 | - |
| 取引態様/引渡時期 | 一般媒介/相談 | 建築確認番号 | 第R05認広建セ00660号 |
| 設備条件 |
|
||
| 備考 |
設計施工:(株)トータテハウジング オール電化住宅 エコキュート 24時間換気システム 浴室換気乾燥暖房機付 閑静な住宅街 日当り良好 御薗宇小学校 松賀中学校 |
||
| QRコード |
このQRコードを読み取ることで、ケータイでも物件情報を確認できます。 |
||






















(※元利均等方式 金利5.00%まで ※返済年数5~50年まで入力できます)
(※ボーナスは年2回で計算しています。1000万円まで入力できます)
