オールハウス株式会社 > 広島市安佐北区落合南3丁目
浴室乾燥機をつけて湿気を除去すればカビの発生を予防できる、浴室乾燥機付きの物件です。室内の音漏れを防止する複層ガラスお子様がいても安心です。動線を意識したデザインのシステムキッチン付きで作業能率が上がります。住環境が良好だと、自然と気持ちにゆとりが生まれませんか。住まいには人の心までも左右する大きな力があるのです。そんな重要なお住まい探しだからこそ、当社にお任せ頂きたいのです。ぜひご検討ください。
※地図上に表示される物件の位置は付近住所に所在することを表すものであり、実際の物件所在地とは異なる場合がございます。
| 物件名 | 広島市安佐北区落合南3丁目 | ||
|---|---|---|---|
| 所在地 | 広島県広島市安佐北区落合南3丁目 | ||
| 交通 |
|
||
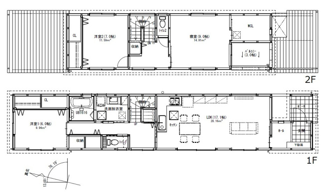
| 間取り/詳細 |
3LDK 1F 17.1LDK 6洋 2F 9洋 7洋 WIC トイレ |
||
| 接道状況 | -(南東 公道 6.4m) | ||
| 価格 | 3,280万円 | 主要採光面 | - |
| 建物面積/坪数 | 112.61㎡/ 34.06坪 | 土地面積/坪数 | 210.35㎡/ 63.63坪 |
| 種別/構造 | 新築一戸建/木造 | 築年月(築年数) | 2024年 4月(新築) |
| 階建 | 2階建 | 地目 | - |
| 駐車場/料金 | -/ 可 | 地勢 | - |
| 私道面積 | - | セットバック | - |
| 都市計画 | 市街化区域 | 用途地域 | 第一種低層住居専用 |
| 建ぺい率/容積率 | 50%/100% | 土地権利 | 所有権 |
| 総区画数 | 1戸 | 借地料/借地期間 | -/- |
| 現況 | 完成済み | その他の法令上の制限 | - |
| 取引態様/引渡時期 | 一般媒介/相談 | 建築確認番号 | 第JE23BA1-34-1016号 |
| 設備条件 |
|
||
| 備考 |
木造在来工法 省令準耐火構造 ベタ基礎 オール電化 フラット35S対応(金利Bプラン) エコキュート IHクッキングヒーター 食器洗浄乾燥機 EV自動車用回路 浴室換気乾燥暖房機 トイレ洗浄便座 玄関電気錠システム 居室窓Low-Eペアガラス 閑静な住宅街 幼稚園・小学校徒歩約5分 落合小学校 口田中学校 |
||
| QRコード |
このQRコードを読み取ることで、ケータイでも物件情報を確認できます。 |
||





















(※元利均等方式 金利5.00%まで ※返済年数5~50年まで入力できます)
(※ボーナスは年2回で計算しています。1000万円まで入力できます)
