オールハウス株式会社 > 広島市西区庚午中4丁目 No.2
「広島市西区庚午中4丁目 No.2」のここがイチオシ。土地の購入をご検討されているなら、ニーズも高いこちらの売地はいかがでしょうか。不動産探しで「不安なこと」や「気になること」はございませんか。不動産のプロである当社スタッフが、お客様の疑問を解消いたします。ぜひお気軽にお問い合わせください。
※地図上に表示される物件の位置は付近住所に所在することを表すものであり、実際の物件所在地とは異なる場合がございます。
| 物件名 | 広島市西区庚午中4丁目 No.2 | ||
|---|---|---|---|
| 所在地 | 広島県広島市西区庚午中4丁目 | ||
| 交通 |
|
||
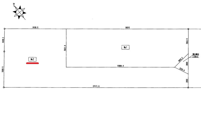
| 接道状況 | -(南東 公道 5.0m 間口 3.0m) | ||
| 価格 | 3,088万円 | 私道面積 | - |
| 土地権利 | 所有権 | 土地面積 | 131.79㎡ |
| 坪数 | 39.86坪 | 坪単価 | 77.47万円 |
| 地目 | 宅地 | 地勢 | - |
| 建築条件 | - | セットバック | - |
| 都市計画 | 市街化区域 | 用途地域 | 第一種住居 |
| 建ぺい率 | 60% | 容積率 | 200% |
| 国土法届出要否 | 不要 | その他の法令上の制限 | - |
| 取引態様 | 一般媒介 | 現況 | 更地 |
| 引渡時期 | 相談 | 引渡条件 | - |
| 最適用途 | - | ||
| 設備条件 |
|
||
| 備考 |
建築条件無し 庚午小学校 庚午中学校 |
||
| QRコード |
このQRコードを読み取ることで、ケータイでも物件情報を確認できます。 |
||





















(※元利均等方式 金利5.00%まで ※返済年数5~50年まで入力できます)
(※ボーナスは年2回で計算しています。1000万円まで入力できます)
