オールハウス株式会社 > 広島市安佐南区川内2丁目 No.4
広島市安佐南区川内2丁目 No.4:可部線緑井にも近くて便利。スーパーが近いので、買い物に時間をかけずに済みますよ。トイレが2ヶ所にあるので複数人でも快適に暮らせます。日当たりが良いところが魅力の南西側に道路面している物件です。生活環境が整った広島市安佐南区なら、きっと充実した生活が送れるでしょう。不動産購入をお考えであれば、お気軽にお問い合わせください。
画像をクリックして視点を操作
※地図上に表示される物件の位置は付近住所に所在することを表すものであり、実際の物件所在地とは異なる場合がございます。
| 物件名 | 広島市安佐南区川内2丁目 No.4 | ||
|---|---|---|---|
| 所在地 | 広島県広島市安佐南区川内2丁目 | ||
| 交通 |
|
||
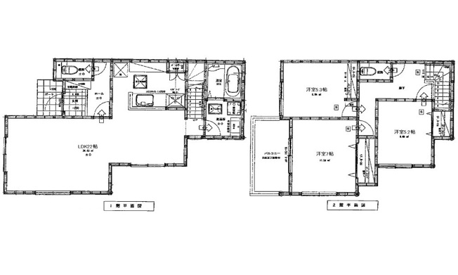
| 間取り/詳細 |
3LDK 1F 22LDK 2F 7洋 5.3洋 5.2洋 トイレ |
||
| 接道状況 | 一方(南西 私道 4.6m) | ||
| 価格 | 4,280万円 | 主要採光面 | - |
| 建物面積/坪数 | 96.87㎡/ 29.3坪 | 土地面積/坪数 | 120.80㎡/ 36.54坪 |
| 種別/構造 | 新築一戸建/木造 | 築年月(築年数) | 2024年 10月(新築) |
| 階建 | 2階建 | 地目 | 宅地 |
| 駐車場/料金 | 有(1台)/- | 地勢 | 平坦 |
| 私道面積 | - | セットバック | - |
| 都市計画 | 市街化区域 | 用途地域 | 第一種住居 |
| 建ぺい率/容積率 | 60%/200% | 土地権利 | 所有権 |
| 総区画数 | 1戸 | 借地料/借地期間 | -/- |
| 現況 | 完成済み | その他の法令上の制限 | - |
| 取引態様/引渡時期 | 一般媒介/相談 | 建築確認番号 | 第R06認広建セ00211号 |
| 設備条件 |
|
||
| 備考 |
オール電化 屋根:カラーベスト葺 外壁:防火サイディング 川内小学校 城南中学校 |
||
| QRコード |
このQRコードを読み取ることで、ケータイでも物件情報を確認できます。 |
||























(※元利均等方式 金利5.00%まで ※返済年数5~50年まで入力できます)
(※ボーナスは年2回で計算しています。1000万円まで入力できます)
