オールハウス株式会社 > 広島市西区庚午中1丁目 No.7
スーパーが近くにあるので、買い忘れがあっても困ることはありません。生活を充実させる利便性が高い新築の戸建て物件です。日が当たる明るい生活が送れるため南西向きはおすすめです。こちらの土地は前面道路6m以上です。広島市西区を中心に不動産情報を扱う当社でなら、きっと広島電鉄宮島線古江周辺の住まい探しにも役立つことでしょう。まずはご希望条件をお聞かせ下さい。
※地図上に表示される物件の位置は付近住所に所在することを表すものであり、実際の物件所在地とは異なる場合がございます。
| 物件名 | 広島市西区庚午中1丁目 No.7 | ||
|---|---|---|---|
| 所在地 | 広島県広島市西区庚午中1丁目 | ||
| 交通 |
|
||
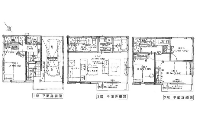
| 間取り/詳細 |
3LDK 1F 6洋 車庫 2F 16LDK 洗面 浴室 トイレ 3F 6.8洋 5.3洋 4.5納戸 トイレ |
||
| 接道状況 | 一方(南西 私道 8.5m) | ||
| 価格 | 4,480万円 | 主要採光面 | 南西 |
| 建物面積/坪数 | 100.18㎡/ 30.3坪 | 土地面積/坪数 | 77.59㎡/ 23.47坪 |
| 種別/構造 | 新築一戸建/木造 | 築年月(築年数) | 2024年 10月(新築) |
| 階建 | 3階建 | 地目 | 宅地 |
| 駐車場/料金 | 有/ 可 | 地勢 | - |
| 私道面積 | - | セットバック | - |
| 都市計画 | 市街化区域 | 用途地域 | 第一種住居 |
| 建ぺい率/容積率 | 60%/200% | 土地権利 | 所有権 |
| 総区画数 | 1戸 | 借地料/借地期間 | -/- |
| 現況 | 完成済み | その他の法令上の制限 | - |
| 取引態様/引渡時期 | 一般媒介/相談 | 建築確認番号 | 第391号 |
| 設備条件 |
|
||
| 備考 | 庚午小学校 庚午中学校 | ||
| QRコード |
このQRコードを読み取ることで、ケータイでも物件情報を確認できます。 |
||






















(※元利均等方式 金利5.00%まで ※返済年数5~50年まで入力できます)
(※ボーナスは年2回で計算しています。1000万円まで入力できます)
