オールハウス株式会社 > 広島市東区馬木6丁目 No.2
芸備線上深川周辺への引っ越しをお考えなら「広島市東区馬木6丁目 No.2」。桜台公園まで385mです。引っ越したらすぐに使えるエアコン付きです。コチラの物件は、新築の戸建て物件です。新生活を新築で始めませんか。広島市東区で住まいを求める方をサポート致します。当社では数多くの不動産情報を取り扱っておりますので、まずはお問い合わせください。
※地図上に表示される物件の位置は付近住所に所在することを表すものであり、実際の物件所在地とは異なる場合がございます。
| 物件名 | 広島市東区馬木6丁目 No.2 | ||
|---|---|---|---|
| 所在地 | 広島県広島市東区馬木6丁目 | ||
| 交通 |
|
||
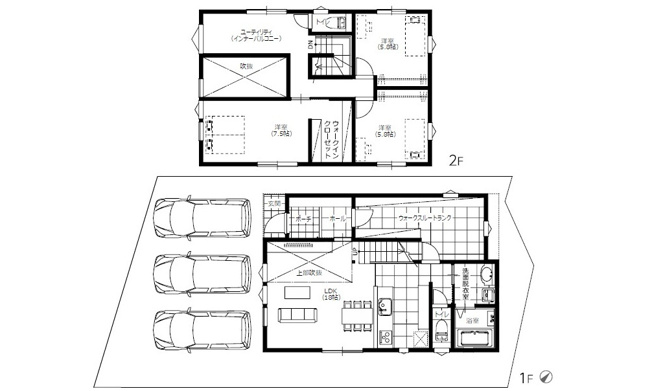
| 間取り/詳細 |
3LDK 1F 18LDK ウォークスルートランク 2F 7.5洋 5.8洋 5.8洋 WIC トイレ |
||
| 接道状況 | 一方(南西 公道 6.0m) | ||
| 価格 | 3,490万円 | 主要採光面 | - |
| 建物面積/坪数 | 112.20㎡/ 33.94坪 | 土地面積/坪数 | 144.66㎡/ 43.75坪 |
| 種別/構造 | 新築一戸建/木造 | 築年月(築年数) | 2024年 9月(新築) |
| 階建 | 2階建 | 地目 | 宅地 |
| 駐車場/料金 | 有(3台)/ 3台可 | 地勢 | - |
| 私道面積 | - | セットバック | - |
| 都市計画 | 市街化区域 | 用途地域 | 第一種低層住居専用 |
| 建ぺい率/容積率 | 50%/100% | 土地権利 | 所有権 |
| 総区画数 | 1戸 | 借地料/借地期間 | -/- |
| 現況 | 完成済み | その他の法令上の制限 | - |
| 取引態様/引渡時期 | 一般媒介/相談 | 建築確認番号 | 第広建セ02503号 |
| 設備条件 |
|
||
| 備考 |
高気密 高断熱 高耐震(軸組パネル工法) フラット35S対応 オール電化 エコキュート 光セラサイディング ガルバリウム鋼板屋根 全室断熱サッシ 1階ウォークスルートランク 2階ユーティリティホール LDK吹抜け インナーバルコニー ダイニングテーブル リビングソファ リビングエアコン TV台 食器棚 全室(カーテン・照明器具)完備 福木小学校 福木中学校 |
||
| QRコード |
このQRコードを読み取ることで、ケータイでも物件情報を確認できます。 |
||




















(※元利均等方式 金利5.00%まで ※返済年数5~50年まで入力できます)
(※ボーナスは年2回で計算しています。1000万円まで入力できます)
