オールハウス株式会社 > 安芸郡熊野町平谷2丁目 平谷台
安芸郡熊野町平谷2丁目 平谷台の詳しい情報。こちらは清潔感のある新築戸建て物件です。複層ガラスなら遮音性があるので騒音などがなく静かです。ウォークインクロゼットは、衣服類をまとめて収納することができるので便利です。当社スタッフが安芸郡熊野町や呉線矢野付近の一戸建て探しをサポートいたします。お気軽に地域の情報などもお尋ねください。
※地図上に表示される物件の位置は付近住所に所在することを表すものであり、実際の物件所在地とは異なる場合がございます。
| 物件名 | 安芸郡熊野町平谷2丁目 平谷台 | ||
|---|---|---|---|
| 所在地 | 広島県安芸郡熊野町平谷2丁目 | ||
| 交通 |
|
||
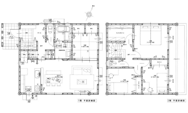
| 間取り/詳細 |
4LDK 1F 18LDK 4.5和 SIC 2F 8洋 5.3洋 5.3洋 WIC トイレ |
||
| 接道状況 | 一方(南西 公道 4.6m 間口 9.0m) | ||
| 価格 | 2,180万円 | 主要採光面 | 南 |
| 建物面積/坪数 | 105.99㎡/ 32.06坪 | 土地面積/坪数 | 164.56㎡/ 49.77坪 |
| 種別/構造 | 新築一戸建/木造 | 築年月(築年数) | 2023年 10月(新築) |
| 階建 | 2階建 | 地目 | 宅地 |
| 駐車場/料金 | 有(2台)/ 2台可 | 地勢 | - |
| 私道面積 | - | セットバック | - |
| 都市計画 | 市街化区域 | 用途地域 | 第一種中高層住居専用 |
| 建ぺい率/容積率 | 60%/200% | 土地権利 | 所有権 |
| 総区画数 | 1戸 | 借地料/借地期間 | -/- |
| 現況 | 完成済み | その他の法令上の制限 | - |
| 取引態様/引渡時期 | 一般媒介/相談 | 建築確認番号 | 第R04認広建セ02379号 |
| 設備条件 |
|
||
| 備考 |
フラット35S対応 オール電化 エコキュート IHクッキングヒーター 食洗乾燥機 カップボード 浴室換気乾燥暖房機能 Low-Eペアガラス アルミ樹脂複合サッシ 玄関ドア電子錠 LDKは全てLEDダウンライト仕様 ワイドバルコニー 瑕疵担保責任保険(あんしん住宅) 東側段落ちのため、日当り・眺望・風通し良好 熊野第三小学校 熊野中学校 |
||
| QRコード |
このQRコードを読み取ることで、ケータイでも物件情報を確認できます。 |
||





















(※元利均等方式 金利5.00%まで ※返済年数5~50年まで入力できます)
(※ボーナスは年2回で計算しています。1000万円まで入力できます)
