オールハウス株式会社 > 東広島市八本松飯田5丁目 No.B
新生活を失敗せず、スタートさせたいならこちらの「東広島市八本松飯田5丁目 No.B」はいかがでしょうか。今回ご紹介しているこちらの物件は南向きです。オール電化なら光熱費の削減になるのでお財布にも優しいです。コチラの物件は、新築の戸建て物件で設備も充実しています。実りある充実した生活が出来るお住まいを探すなら、当社にお任せください。住まいが変われば、人生が変わります。ぜひご検討ください。
※地図上に表示される物件の位置は付近住所に所在することを表すものであり、実際の物件所在地とは異なる場合がございます。
| 物件名 | 東広島市八本松飯田5丁目 No.B | ||
|---|---|---|---|
| 所在地 | 広島県東広島市八本松飯田5丁目 | ||
| 交通 |
|
||
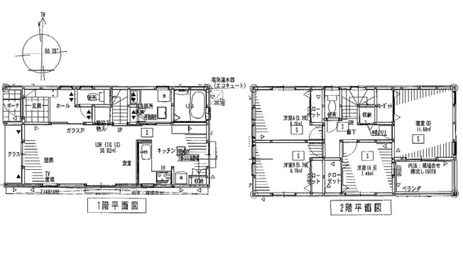
| 間取り/詳細 |
4LDK 1F 18.13LDK 2F 6洋 5.29洋 5.29洋 4.5洋 トイレ |
||
| 接道状況 | 一方(北西 公道) | ||
| 価格 | 3,150万円 | 主要採光面 | 南 |
| 建物面積/坪数 | 99.16㎡/ 29.99坪 | 土地面積/坪数 | 242.16㎡/ 73.25坪 |
| 種別/構造 | 新築一戸建/木造 | 築年月(築年数) | 2024年 10月(新築) |
| 階建 | 2階建 | 地目 | 宅地 |
| 駐車場/料金 | -/- | 地勢 | - |
| 私道面積 | - | セットバック | - |
| 都市計画 | 市街化調整区域 | 用途地域 | - |
| 建ぺい率/容積率 | -/- | 土地権利 | 所有権 |
| 総区画数 | 1戸 | 借地料/借地期間 | -/- |
| 現況 | 完成済み | その他の法令上の制限 | - |
| 取引態様/引渡時期 | 一般媒介/相談 | 建築確認番号 | 第JE24BA1-34-0418号 |
| 設備条件 |
|
||
| 備考 |
オール電化住宅 エコキュート フラット35S A利用可 川上小学校 磯松中学校 |
||
| QRコード |
このQRコードを読み取ることで、ケータイでも物件情報を確認できます。 |
||






















(※元利均等方式 金利5.00%まで ※返済年数5~50年まで入力できます)
(※ボーナスは年2回で計算しています。1000万円まで入力できます)
