オールハウス株式会社 > 安芸郡府中町柳ヶ丘 No.8
新生活を失敗せず、スタートさせたいならこちらの「安芸郡府中町柳ヶ丘 No.8」はいかがでしょうか。お花や植物が育てやすい南向きの物件です。南向きの物件をお探しの方、コチラよりご覧ください。新築戸建ての物件は、室内のレイアウトも自分好みに変更可能です。安芸郡府中町にある山陽本線向洋周辺での住まい探しなら、お気軽にご連絡下さい。当社スタッフがお客様の住まい探しをサポートさせていただきます。
画像をクリックして視点を操作
※地図上に表示される物件の位置は付近住所に所在することを表すものであり、実際の物件所在地とは異なる場合がございます。
| 物件名 | 安芸郡府中町柳ヶ丘 No.8 | ||
|---|---|---|---|
| 所在地 | 広島県安芸郡府中町柳ケ丘 | ||
| 交通 |
|
||
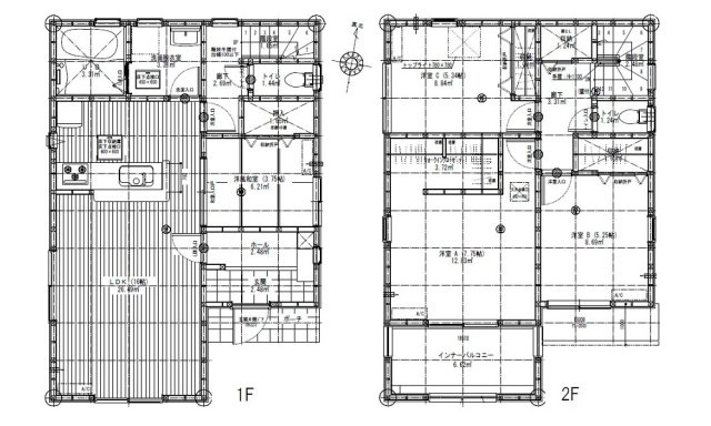
| 間取り/詳細 |
5LDK 1F 16LDK 3.75洋和 2F 7.75洋 5.34洋 5.25洋 WIC トイレ |
||
| 接道状況 | 一方(南 公道 4.5m 間口 5.5m) | ||
| 価格 | 3,880万円 | 主要採光面 | 南 |
| 建物面積/坪数 | 103.50㎡/ 31.3坪 | 土地面積/坪数 | 102.99㎡/ 31.15坪 |
| 種別/構造 | 新築一戸建/木造 | 築年月(築年数) | 2025年 6月(新築) |
| 階建 | 2階建 | 地目 | 宅地 |
| 駐車場/料金 | 有(2台)/ 並列2台可 | 地勢 | - |
| 私道面積 | - | セットバック | - |
| 都市計画 | 市街化区域 | 用途地域 | 第一種中高層住居専用 |
| 建ぺい率/容積率 | 60%/200% | 土地権利 | 所有権 |
| 総区画数 | 1戸 | 借地料/借地期間 | -/- |
| 現況 | 完成済み | その他の法令上の制限 | - |
| 取引態様/引渡時期 | 一般媒介/相談 | 建築確認番号 | 第R06SHC114102号 |
| 設備条件 |
|
||
| 備考 |
設計、建設性能評価取得 耐震等級3 フラット35S(金利Aプラン) 地盤保証20年 主要構造部分35年住宅保証システム (有償修繕工事継続による) 引渡し後無料点検実施(6ヶ月、2年、5年、10年の計4回) 全居室ペアガラス 浴室乾燥機 長期優良住宅取得予定 府中南小学校 府中緑ケ丘中学校 |
||
| QRコード |
このQRコードを読み取ることで、ケータイでも物件情報を確認できます。 |
||






















(※元利均等方式 金利5.00%まで ※返済年数5~50年まで入力できます)
(※ボーナスは年2回で計算しています。1000万円まで入力できます)
