オールハウス株式会社 > 広島市安佐北区落合南1丁目 城ヶ丘 No.A
南東向きの物件をお探しの方、コチラよりご覧ください。駐車が2台できるので、様々な用途に使えます。コチラの物件は、新築の戸建て物件です。新生活を新築で始めませんか。太陽光発電システム付き物件なら、光熱費を大幅に下げる事が出来ます。広島市安佐北区の芸備線安芸矢口近くで住まい探しをするのであれば、まずは当社スタッフにお声かけ下さい。お客様に合った不動産をご紹介させていただきます。
※地図上に表示される物件の位置は付近住所に所在することを表すものであり、実際の物件所在地とは異なる場合がございます。
| 物件名 | 広島市安佐北区落合南1丁目 城ヶ丘 No.A | ||
|---|---|---|---|
| 所在地 | 広島県広島市安佐北区落合南1丁目 | ||
| 交通 |
|
||
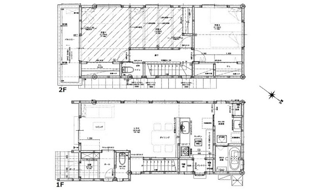
| 間取り/詳細 |
3LDK 1F 18.1LDK パントリー 2F 7洋 7洋 6洋 トイレ |
||
| 接道状況 | 一方(南東 公道 4.0m 間口 6.5m) | ||
| 価格 | 3,250万円 | 主要採光面 | 南東 |
| 建物面積/坪数 | 100.07㎡/ 30.27坪 | 土地面積/坪数 | 118.43㎡/ 35.82坪 |
| 種別/構造 | 新築一戸建/木造 | 築年月(築年数) | 2025年 4月(新築) |
| 階建 | 2階建 | 地目 | 宅地 |
| 駐車場/料金 | 有(2台)/ 2台可 | 地勢 | - |
| 私道面積 | - | セットバック | - |
| 都市計画 | 市街化区域 | 用途地域 | 第一種低層住居専用 |
| 建ぺい率/容積率 | 50%/100% | 土地権利 | 所有権 |
| 総区画数 | 1戸 | 借地料/借地期間 | -/- |
| 現況 | 完成済み | その他の法令上の制限 | - |
| 取引態様/引渡時期 | 一般媒介/相談 | 建築確認番号 | 第R06認広建セ01633号 |
| 設備条件 |
|
||
| 備考 |
太陽光発電システム+蓄電池完備 落合小学校 口田中学校 |
||
| QRコード |
このQRコードを読み取ることで、ケータイでも物件情報を確認できます。 |
||























(※元利均等方式 金利5.00%まで ※返済年数5~50年まで入力できます)
(※ボーナスは年2回で計算しています。1000万円まで入力できます)
