オールハウス株式会社 > 広島市安佐北区落合南1丁目 城ヶ丘 No.B
こだわりで選びたい方におすすめ。広島市安佐北区エリアで住まいをお探しなら「広島市安佐北区落合南1丁目 城ヶ丘 No.B」。非常用電源にもなる太陽光発電システム付き物件で快適な生活を送りませんか。角地なので日当たりも良く健康的な生活に適しています。2台駐車可能です。不動産について何かご不明な点などがございましたら、広島市安佐北区に強い当社スタッフへとお問い合わせください。しっかりとお応え致します。
※地図上に表示される物件の位置は付近住所に所在することを表すものであり、実際の物件所在地とは異なる場合がございます。
| 物件名 | 広島市安佐北区落合南1丁目 城ヶ丘 No.B | ||
|---|---|---|---|
| 所在地 | 広島県広島市安佐北区落合南1丁目 | ||
| 交通 |
|
||
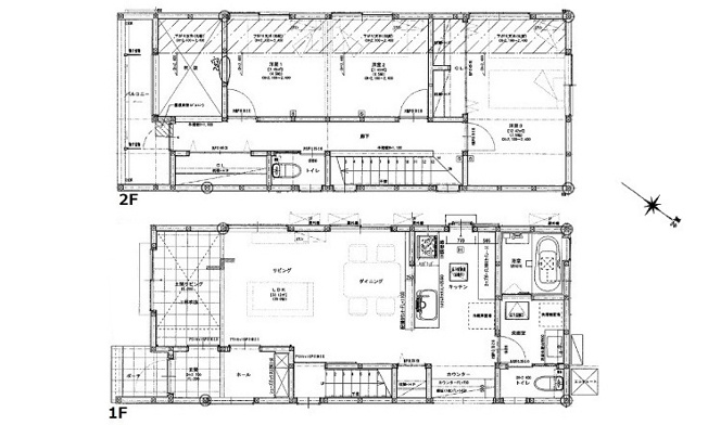
| 間取り/詳細 |
3LDK 1F 20LDK 土間リビング 2F 7.5洋 4.5洋 4.5洋 トイレ |
||
| 接道状況 | 角地(南西 公道 4.0m)(南東 間口 6.5m) | ||
| 価格 | 3,480万円 | 主要採光面 | 南東 |
| 建物面積/坪数 | 98.82㎡/ 29.89坪 | 土地面積/坪数 | 119.15㎡/ 36.04坪 |
| 種別/構造 | 新築一戸建/木造 | 築年月(築年数) | 2025年 4月(新築) |
| 階建 | 2階建 | 地目 | 宅地 |
| 駐車場/料金 | 有(2台)/ 2台可 | 地勢 | - |
| 私道面積 | - | セットバック | - |
| 都市計画 | - | 用途地域 | 第一種低層住居専用 |
| 建ぺい率/容積率 | 50%/100% | 土地権利 | 所有権 |
| 総区画数 | 1戸 | 借地料/借地期間 | -/- |
| 現況 | 完成済み | その他の法令上の制限 | - |
| 取引態様/引渡時期 | 一般媒介/相談 | 建築確認番号 | 第R06認広建セ01634号 |
| 設備条件 |
|
||
| 備考 |
太陽光発電システム+蓄電池完備 吹き抜け 落合小学校 口田中学校 |
||
| QRコード |
このQRコードを読み取ることで、ケータイでも物件情報を確認できます。 |
||























(※元利均等方式 金利5.00%まで ※返済年数5~50年まで入力できます)
(※ボーナスは年2回で計算しています。1000万円まで入力できます)
