オールハウス株式会社 > 広島市安佐北区亀崎1丁目 高陽ニュータウンA2住区
中古の戸建て物件は便利な価格が魅力の1つです。毎日の身支度が楽しくなる、洗面化粧台付きの物件はいかがですか。機能的で使いやすいシステムキッチン付きなので、お料理を楽しめます。オール電化の住宅です。当社では、広島市安佐北区エリアや芸備線下深川付近での一戸建て情報をご紹介致します。まずはお気軽にお問い合わせ下さい。
※地図上に表示される物件の位置は付近住所に所在することを表すものであり、実際の物件所在地とは異なる場合がございます。
| 物件名 | 広島市安佐北区亀崎1丁目 高陽ニュータウンA2住区 | ||
|---|---|---|---|
| 所在地 | 広島県広島市安佐北区亀崎1丁目 | ||
| 交通 |
|
||
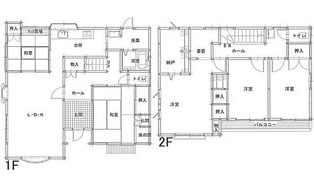
| 間取り/詳細 |
5LDK 1F LDK 和 和 2F 洋 洋 洋 納戸 書斎 トイレ |
||
| 接道状況 | -(南東) | ||
| 価格 | 2,790万円 | 主要採光面 | - |
| 建物面積/坪数 | 148.75㎡/ 44.99坪 | 土地面積/坪数 | 215.99㎡/ 65.33坪 |
| 種別/構造 | 中古一戸建/軽量鉄骨 | 築年月(築年数) | 1988年 3月(築37年) |
| 階建 | 2階建 | 地目 | - |
| 駐車場/料金 | 有(1台)/- | 地勢 | - |
| 私道面積 | - | セットバック | - |
| 都市計画 | 市街化区域 | 用途地域 | 第一種低層住居専用 |
| 建ぺい率/容積率 | 50%/100% | 土地権利 | 所有権 |
| 総区画数 | 1戸 | 借地料/借地期間 | -/- |
| 現況 | 居住中 | その他の法令上の制限 | - |
| 取引態様/引渡時期 | 一般媒介/相談 | 建築確認番号 | - |
| 設備条件 |
|
||
| 備考 |
フジグラン高陽まで約600m 日当たり良好 積水ハウスの注文住宅 庭があり家庭菜園やガーデニングも楽しめます オール電化 温水洗浄便座 シャワー付き洗面化粧台 システムキッチン IHクッキングヒーター 亀崎小学校まで約500m 落合中学校まで約850m 亀崎小学校 亀崎中学校 |
||
| QRコード |
このQRコードを読み取ることで、ケータイでも物件情報を確認できます。 |
||






















(※元利均等方式 金利5.00%まで ※返済年数5~50年まで入力できます)
(※ボーナスは年2回で計算しています。1000万円まで入力できます)
