オールハウス株式会社 > 広島市東区福田7丁目 大和台
芸備線上深川駅周辺への引っ越しをお考えなら「広島市東区福田7丁目 大和台」。広くて嬉しい建物面積も30坪以上あります。ウォークインクローゼット付きの物件です。環境にも優しいオール電化住宅なら、毎日が充実した快適な生活を送れると思います。当社では数多くの不動産を取り扱っておりますので、お客様の希望する不動産を見つけ、よりよい生活を実現させます。ぜひご検討ください。
※地図上に表示される物件の位置は付近住所に所在することを表すものであり、実際の物件所在地とは異なる場合がございます。
| 物件名 | 広島市東区福田7丁目 大和台 | ||
|---|---|---|---|
| 所在地 | 広島県広島市東区福田7丁目 | ||
| 交通 |
|
||
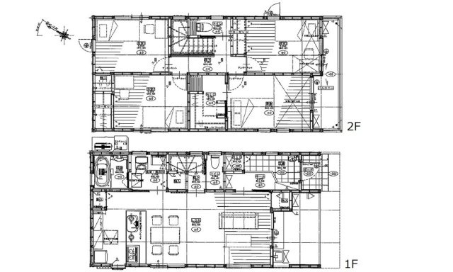
| 間取り/詳細 |
4LDK 1F LDK SIC 2F 洋 洋 洋 洋 WIC トイレ |
||
| 接道状況 | -(南東 公道 6.2m 間口 4.2m)(南西 公道 6.2m 間口 14.4m) | ||
| 価格 | 2,690万円 | 主要採光面 | - |
| 建物面積/坪数 | 112.74㎡/ 34.1坪 | 土地面積/坪数 | 121.46㎡/ 36.74坪 |
| 種別/構造 | 中古一戸建/木造 | 築年月(築年数) | 2022年 1月(築4年) |
| 階建 | 2階建 | 地目 | - |
| 駐車場/料金 | -/ 2台可 | 地勢 | - |
| 私道面積 | - | セットバック | - |
| 都市計画 | 市街化区域 | 用途地域 | 第一種低層住居専用 |
| 建ぺい率/容積率 | 50%/100% | 土地権利 | 所有権 |
| 総区画数 | 1戸 | 借地料/借地期間 | -/- |
| 現況 | 空家 | その他の法令上の制限 | - |
| 取引態様/引渡時期 | 一般媒介/相談 | 建築確認番号 | - |
| 設備条件 |
|
||
| 備考 |
オール電化住宅 建築後未入居 福木小学校 福木中学校 |
||
| QRコード |
このQRコードを読み取ることで、ケータイでも物件情報を確認できます。 |
||






















(※元利均等方式 金利5.00%まで ※返済年数5~50年まで入力できます)
(※ボーナスは年2回で計算しています。1000万円まで入力できます)
