オールハウス株式会社 > 広島市安芸区中野7丁目No.2
接道幅10m以上あれば車の出し入れが非常に楽です。この物件は広々としたシステムキッチンなので、普段の料理も楽しくなるでしょう。新築の戸建てで気分爽快な生活を送りましょう。キッチン周りの掃除がラクラクな、オール電化住宅が今流行りです。広島市安芸区での新生活を当社がサポート致します。不動産の購入についてお困りの点などございましたら、ぜひご連絡くださいませ。
※地図上に表示される物件の位置は付近住所に所在することを表すものであり、実際の物件所在地とは異なる場合がございます。
| 物件名 | 広島市安芸区中野7丁目No.2 | ||
|---|---|---|---|
| 所在地 | 広島県広島市安芸区中野7丁目 | ||
| 交通 |
|
||
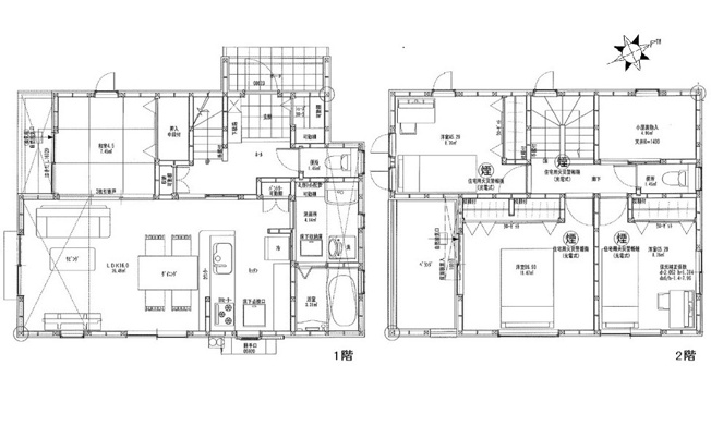
| 間取り/詳細 |
4LDK 1F 16LDK 4.5和 2F 6.93洋 5.29洋 5.29洋 小屋裏物入 トイレ |
||
| 接道状況 | -(南西 私道 4.5m 間口 14.5m) | ||
| 価格 | 2,850万円 | 主要採光面 | - |
| 建物面積/坪数 | 95.75㎡/ 28.96坪 | 土地面積/坪数 | 143.18㎡/ 43.31坪 |
| 種別/構造 | 新築一戸建/木造 | 築年月(築年数) | 2025年 6月(新築) |
| 階建 | 2階建 | 地目 | - |
| 駐車場/料金 | -/ 可 | 地勢 | - |
| 私道面積 | - | セットバック | - |
| 都市計画 | 市街化区域 | 用途地域 | 第一種住居 |
| 建ぺい率/容積率 | 60%/180% | 土地権利 | 所有権 |
| 総区画数 | 1戸 | 借地料/借地期間 | -/- |
| 現況 | 完成済み | その他の法令上の制限 | - |
| 取引態様/引渡時期 | 一般媒介/相談 | 建築確認番号 | 第R06認広建セ02303号 |
| 設備条件 |
|
||
| 備考 | 中野東小学校 瀬野川中学校 | ||
| QRコード |
このQRコードを読み取ることで、ケータイでも物件情報を確認できます。 |
||






















(※元利均等方式 金利5.00%まで ※返済年数5~50年まで入力できます)
(※ボーナスは年2回で計算しています。1000万円まで入力できます)
