オールハウス株式会社 > 広島市安芸区中野7丁目No.3
多くの方から高いニーズのある、内装もピカピカの新築戸建ての物件です。システムキッチン付きの物件でカラーリングも統一できるため見た目に一体感が生まれ、美しいです。冬でも家中があったかいオール電化住宅で、寒い時でも毎日ぽかぽかです。当社では、広島市安芸区にある不動産情報を数多くご用意しております。お引っ越しをお考えの方は、この機会にぜひご連絡ください。
※地図上に表示される物件の位置は付近住所に所在することを表すものであり、実際の物件所在地とは異なる場合がございます。
| 物件名 | 広島市安芸区中野7丁目No.3 | ||
|---|---|---|---|
| 所在地 | 広島県広島市安芸区中野7丁目 | ||
| 交通 |
|
||
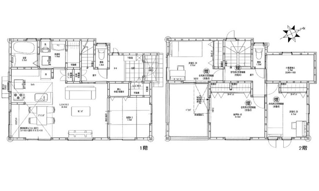
| 間取り/詳細 |
4LDK 1F 16LDK 4.5和 SIC 2F 6.43洋 5.29洋 5.29洋 小屋裏物入 トイレ |
||
| 接道状況 | -(南東 私道 4.5m 間口 9.1m) | ||
| 価格 | 2,850万円 | 主要採光面 | - |
| 建物面積/坪数 | 96.78㎡/ 29.27坪 | 土地面積/坪数 | 156.85㎡/ 47.44坪 |
| 種別/構造 | 新築一戸建/木造 | 築年月(築年数) | 2025年 6月(新築) |
| 階建 | 2階建 | 地目 | - |
| 駐車場/料金 | -/ 可 | 地勢 | - |
| 私道面積 | - | セットバック | - |
| 都市計画 | 市街化区域 | 用途地域 | 第一種住居 |
| 建ぺい率/容積率 | 60%/180% | 土地権利 | 所有権 |
| 総区画数 | 1戸 | 借地料/借地期間 | -/- |
| 現況 | 完成済み | その他の法令上の制限 | - |
| 取引態様/引渡時期 | 一般媒介/相談 | 建築確認番号 | 第R06認広建セ02304号 |
| 設備条件 |
|
||
| 備考 | 中野東小学校 瀬野川中学校 | ||
| QRコード |
このQRコードを読み取ることで、ケータイでも物件情報を確認できます。 |
||






















(※元利均等方式 金利5.00%まで ※返済年数5~50年まで入力できます)
(※ボーナスは年2回で計算しています。1000万円まで入力できます)
