オールハウス株式会社 > リブゼ温品
上温品第二公園まで275mです。バス停から徒歩3分以内なので、どこに行くのも便利な立地です。システムキッチンは必要な物が組み込まれているため、すぐ調理できます。バルコニー付きの物件です。不動産に関することでお悩みを抱えているのであれば、地域に詳しい当社スタッフが住まい探しをサポート致します。こだわりやご要望などがあれば、お気軽にお問い合わせ下さい。
※地図上に表示される物件の位置は付近住所に所在することを表すものであり、実際の物件所在地とは異なる場合がございます。
| 物件名 | リブゼ温品 | ||
|---|---|---|---|
| 所在地 | 広島県広島市東区上温品4丁目 | ||
| 交通 |
|
||
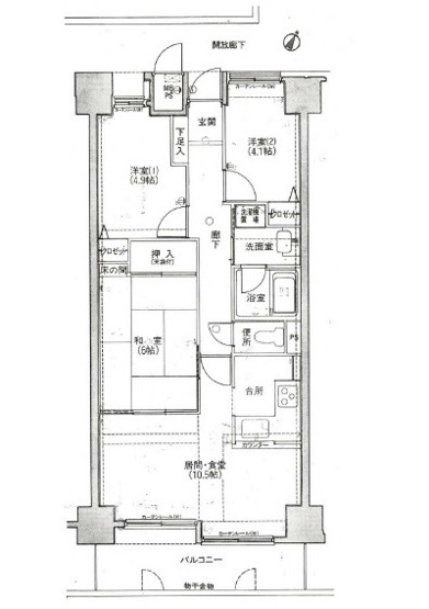
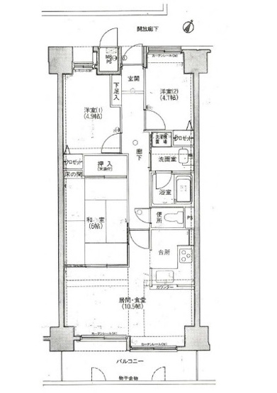
| 間取り/詳細 |
3LDK 10.5LD K 6和 4.9洋 4.1洋 |
||
| 価格 | 850万円 | 管理費+共益費 | 5,400円 |
| 専有面積 | 59.61㎡ | バルコニー面積 | 8.66㎡ |
| 種別/構造 | 中古マンション/鉄骨鉄筋コンクリート | 築年月(築年数)/方位 | 1996年 1月(築29年)/- |
| 所在階/階建 | 13階/ 15階建 | 地勢 | - |
| 修繕積立金 | 7,590円 | 駐車場/料金 | -/ 駐車場:月6,000円/1台空有、月7,500円/3台空有(R7.1/30現在) |
| 管理組合有無 | - | 管理形態 | 管理会社に全部委託 |
| 管理方式 | 日勤 | 管理会社 | 日本ハウズイング(株) |
| 棟総戸数 | 114戸 | 用途地域 | 第一種住居 |
| 土地権利 | 所有権 | 国土法届出要否 | 不要 |
| 取引態様 | 一般媒介 | 現状 | 空家 |
| 引渡し | 相談 | 建築確認番号 | - |
| 設備条件 |
|
||
| 備考 |
ハウスクリーニング済み ふすま・障子張り替え済み 敷地内立体駐車場空きあり(車種制限有) 上温品小学校 温品中学校 |
||
| QRコード |
このQRコードを読み取ることで、ケータイでも物件情報を確認できます。 |
||





















(※元利均等方式 金利5.00%まで ※返済年数5~50年まで入力できます)
(※ボーナスは年2回で計算しています。1000万円まで入力できます)
