オールハウス株式会社 > 広島市西区高須3丁目No.1
こだわりで選びたい方におすすめ。広島市西区エリアで住まいをお探しなら「広島市西区高須3丁目No.1」。全居室が洋室なので、お掃除の手間も省くことができます。大人数でも不自由なく楽しめる、15帖以上のLDKです。備え付けの食器棚があるので、食器棚を買う手間が省けます。一戸建てを探すのであれば、当社スタッフがお手伝いいたします。広島市西区の広島電鉄宮島線高須周辺にある不動産のことならお任せ下さい。
※地図上に表示される物件の位置は付近住所に所在することを表すものであり、実際の物件所在地とは異なる場合がございます。
| 物件名 | 広島市西区高須3丁目No.1 | ||
|---|---|---|---|
| 所在地 | 広島県広島市西区高須3丁目 | ||
| 交通 |
|
||
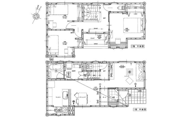
| 間取り/詳細 |
3LDK 1F 16.5LDK 2F 7洋 5.5洋 5.5洋 トイレ |
||
| 接道状況 | -(南東 公道 4.1m) | ||
| 価格 | 3,680万円 | 主要採光面 | - |
| 建物面積/坪数 | 84.86㎡/ 25.67坪 | 土地面積/坪数 | 95.16㎡/ 28.78坪 |
| 種別/構造 | 新築一戸建/木造 | 築年月(築年数) | 2024年 8月(新築) |
| 階建 | 2階建 | 地目 | - |
| 駐車場/料金 | -/- | 地勢 | - |
| 私道面積 | - | セットバック | - |
| 都市計画 | 市街化区域 | 用途地域 | 第一種住居 |
| 建ぺい率/容積率 | 60%/200% | 土地権利 | 所有権 |
| 総区画数 | 1戸 | 借地料/借地期間 | -/- |
| 現況 | 完成済み | その他の法令上の制限 | - |
| 取引態様/引渡時期 | 一般媒介/相談 | 建築確認番号 | 第R05認広建セ02570号 |
| 設備条件 |
|
||
| 備考 |
トータテハウジング施工 外構付 瑕疵担保保険付 フラット35S使用可能(但し、期限内に限ります) 敷地内に電柱有り(2本) カップボード付き 高須小学校 古田中学校 |
||
| QRコード |
このQRコードを読み取ることで、ケータイでも物件情報を確認できます。 |
||






















(※元利均等方式 金利5.00%まで ※返済年数5~50年まで入力できます)
(※ボーナスは年2回で計算しています。1000万円まで入力できます)
