オールハウス株式会社 > 広島市安佐北区落合南1丁目 城ケ丘団地
18帖以上もあるリビングで家族団らんで過ごしませんか。フラット35S対応の物件ですので、手数料を抑えることができます。全居室が洋室なので、お掃除の手間も省くことができます。南西側の道路に接しているので日当たりが良く快適です。広島市安佐北区の芸備線安芸矢口周辺には、マイホームに相応しい一戸建て情報が豊富です。引っ越しをお考えの方は、お気軽にご連絡ください。
※地図上に表示される物件の位置は付近住所に所在することを表すものであり、実際の物件所在地とは異なる場合がございます。
| 物件名 | 広島市安佐北区落合南1丁目 城ケ丘団地 | ||
|---|---|---|---|
| 所在地 | 広島県広島市安佐北区落合南1丁目 | ||
| 交通 |
|
||
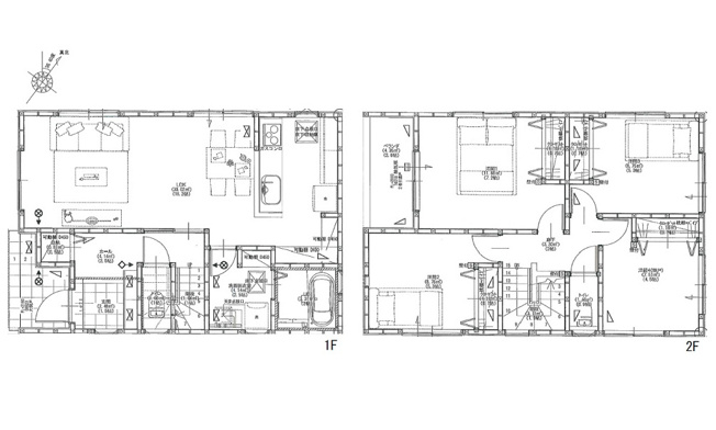
| 間取り/詳細 |
4LDK 1F 18.2LDK 2F 7.2洋 5.3洋 5.3洋 4.5洋 トイレ |
||
| 接道状況 | -(南西 公道) | ||
| 価格 | 3,280万円 | 主要採光面 | - |
| 建物面積/坪数 | 97.70㎡/ 29.55坪 | 土地面積/坪数 | 138.25㎡/ 41.82坪 |
| 種別/構造 | 新築一戸建/木造 | 築年月(築年数) | 2024年 11月(新築) |
| 階建 | 2階建 | 地目 | - |
| 駐車場/料金 | 有(3台)/- | 地勢 | - |
| 私道面積 | - | セットバック | - |
| 都市計画 | 市街化区域 | 用途地域 | 第一種低層住居専用 |
| 建ぺい率/容積率 | 50%/100% | 土地権利 | 所有権 |
| 総区画数 | 1戸 | 借地料/借地期間 | -/- |
| 現況 | 完成済み | その他の法令上の制限 | - |
| 取引態様/引渡時期 | 一般媒介/相談 | 建築確認番号 | 第R6認広建セ00228号 |
| 設備条件 |
|
||
| 備考 |
設計施工:(株)トータテハウジング ZEH水準省エネ住宅 24時間換気システム フラット35S・A(省エネ)仕様 一次エネルギー消費量等級6 断熱等性能等級5 日当たり良好 閑静な住宅街 落合小学校 口田中学校 |
||
| QRコード |
このQRコードを読み取ることで、ケータイでも物件情報を確認できます。 |
||






















(※元利均等方式 金利5.00%まで ※返済年数5~50年まで入力できます)
(※ボーナスは年2回で計算しています。1000万円まで入力できます)
