オールハウス株式会社 > 広島市安芸区矢野東4丁目No.3
「広島市安芸区矢野東4丁目No.3」:広島市安芸区エリアの新居にピッタリ。新生活をピカピカの新築戸建て物件で始めてみませんか。駐車スペースが3台分空いている物件なので、車を複数お持ちの方はいかがでしょうか。多くの方がこだわりを持つ建物面積も30坪以上なので安心です。呉線矢野周辺で快適な暮らしが送れるよう、当社スタッフがサポート致します。住まい探しでしたら是非お任せください。
※地図上に表示される物件の位置は付近住所に所在することを表すものであり、実際の物件所在地とは異なる場合がございます。
| 物件名 | 広島市安芸区矢野東4丁目No.3 | ||
|---|---|---|---|
| 所在地 | 広島県広島市安芸区矢野東4丁目 | ||
| 交通 |
|
||
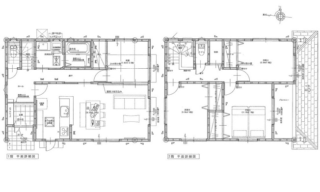
| 間取り/詳細 |
4LDK 1F 16LDK 4.5和 2F 7洋 6洋 6洋 トイレ |
||
| 接道状況 | -(北 公道 4.0m) | ||
| 価格 | 4,380万円 | 主要採光面 | - |
| 建物面積/坪数 | 103.51㎡/ 31.31坪 | 土地面積/坪数 | 280.72㎡/ 84.91坪 |
| 種別/構造 | 新築一戸建/木造 | 築年月(築年数) | 2025年 9月(新築) |
| 階建 | 2階建 | 地目 | - |
| 駐車場/料金 | 有(3台)/- | 地勢 | - |
| 私道面積 | - | セットバック | - |
| 都市計画 | 市街化区域 | 用途地域 | 第一種住居 |
| 建ぺい率/容積率 | 60%/200% | 土地権利 | 所有権 |
| 総区画数 | 1戸 | 借地料/借地期間 | -/- |
| 現況 | 完成済み | その他の法令上の制限 | - |
| 取引態様/引渡時期 | 一般媒介/相談 | 建築確認番号 | 第R06認広建セ02329号 |
| 設備条件 |
|
||
| 備考 |
ZEH仕様 オール電化 エコキュート フラット35S(A) キッチン・カップボード:クリナップ トイレ・洗面化粧台・システムバス:TOTO ポーチ・玄関(親子ドア)・廊下:人感センサーライト 玄関鍵ポケットkey(電気錠) サッシYKK Low-E複層ガラス TVモニター付インターホン 収納豊富 矢野小学校 矢野中学校 |
||
| QRコード |
このQRコードを読み取ることで、ケータイでも物件情報を確認できます。 |
||






















(※元利均等方式 金利5.00%まで ※返済年数5~50年まで入力できます)
(※ボーナスは年2回で計算しています。1000万円まで入力できます)
