オールハウス株式会社 > 広島市南区南大河町
新生活を失敗せず、スタートさせたいならこちらの「広島市南区南大河町」はいかがでしょうか。マルショク 旭町店まで徒歩5分です。駐車が4台まで可ということで、複数の世帯のご入居でも安心して駐車できます。広島市南区で新生活を始めるのであれば、不動産情報を豊富に扱う当社までご連絡ください。まずはお問い合わせからお待ちしております。
※地図上に表示される物件の位置は付近住所に所在することを表すものであり、実際の物件所在地とは異なる場合がございます。
| 物件名 | 広島市南区南大河町 | ||
|---|---|---|---|
| 所在地 | 広島県広島市南区南大河町 | ||
| 交通 |
|
||
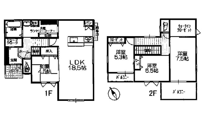
| 間取り/詳細 |
4LDK 1F 18.5LDK 4.5和 ランドリーコーナー SIC 2F 7.5洋 5.5洋 5.3洋 WIC トイレ |
||
| 接道状況 | -(西 1.3m) | ||
| 価格 | 4,980万円 | 主要採光面 | - |
| 建物面積/坪数 | 105.99㎡/ 32.06坪 | 土地面積/坪数 | 165.02㎡/ 49.91坪 |
| 種別/構造 | 新築一戸建/木造 | 築年月(築年数) | 2025年 7月(新築) |
| 階建 | 2階建 | 地目 | - |
| 駐車場/料金 | 有(4台)/- | 地勢 | - |
| 私道面積 | - | セットバック | 148.30㎡ |
| 都市計画 | 市街化区域 | 用途地域 | 第一種住居 |
| 建ぺい率/容積率 | 60%/160% | 土地権利 | 所有権 |
| 総区画数 | 1戸 | 借地料/借地期間 | -/- |
| 現況 | 完成済み | その他の法令上の制限 | - |
| 取引態様/引渡時期 | 一般媒介/相談 | 建築確認番号 | 第1841号 |
| 設備条件 |
|
||
| 備考 |
エコジョーズ 乾太くん 食洗器付キッチン カップボード 全室照明付 ペアガラス 外構付 陽当り良 平坦地 収納充実 施工:藤吉建設 大河小学校 翠町中学校 |
||
| QRコード |
このQRコードを読み取ることで、ケータイでも物件情報を確認できます。 |
||






















(※元利均等方式 金利5.00%まで ※返済年数5~50年まで入力できます)
(※ボーナスは年2回で計算しています。1000万円まで入力できます)
