オールハウス株式会社 > 広島市安佐南区上安7丁目No.A
新生活を失敗せず、スタートさせたいならこちらの「広島市安佐南区上安7丁目No.A」はいかがでしょうか。服を畳まずに掛けるだけでいいウォークインクローゼットがついているので、家事の時短につながります。建物面積は30坪以上で開放感があります。住みよい環境を求め続けているならば、当社にお任せください。たくさんの不動産の中から、お客様の合った一戸建てを紹介いたします。
6月11日 値下げ
※地図上に表示される物件の位置は付近住所に所在することを表すものであり、実際の物件所在地とは異なる場合がございます。
| 物件名 | 広島市安佐南区上安7丁目No.A | ||
|---|---|---|---|
| 所在地 | 広島県広島市安佐南区上安7丁目 | ||
| 交通 |
|
||
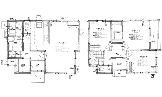
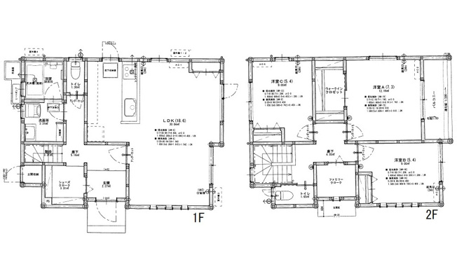
| 間取り/詳細 |
3LDK 1F 18.6LDK 土間収納 SIC 2F 7.3洋 5.4洋 5.4洋 WIC ファミリークローク トイレ |
||
| 接道状況 | 角地(南西 公道 3.5m)(北西) | ||
| 価格 | 2,780万円 | 主要採光面 | - |
| 建物面積/坪数 | 104.90㎡/ 31.73坪 | 土地面積/坪数 | 174.41㎡/ 52.75坪 |
| 種別/構造 | 新築一戸建/木造 | 築年月(築年数) | 2025年 10月(予定) |
| 階建 | 2階建 | 地目 | - |
| 駐車場/料金 | -/ 普通車3台可 | 地勢 | - |
| 私道面積 | - | セットバック | - |
| 都市計画 | 市街化区域 | 用途地域 | 第一種低層住居専用 |
| 建ぺい率/容積率 | 50%/100% | 土地権利 | 所有権 |
| 総区画数 | 1戸 | 借地料/借地期間 | -/- |
| 現況 | 未完成 | その他の法令上の制限 | - |
| 取引態様/引渡時期 | 一般媒介/相談 | 建築確認番号 | 第R06認広建セ02910号 |
| 設備条件 |
|
||
| 備考 |
オール電化住宅 駐車普通車3台可 角地 対面式キッチン 安北小学校 高取北中学校 |
||
| QRコード |
このQRコードを読み取ることで、ケータイでも物件情報を確認できます。 |
||






















(※元利均等方式 金利5.00%まで ※返済年数5~50年まで入力できます)
(※ボーナスは年2回で計算しています。1000万円まで入力できます)
