オールハウス株式会社 > 広島市安佐南区伴東1丁目
ベタ基礎による建築の為、床下からの嫌な湿気も気になりません。一生に一度のマイホーム探しは、ぜひ新築戸建てで。こちらのお住まいは2階部分にLDKがあります。外干しできないときも居室の一部を物干しスペースにしなくて済む、浴室乾燥機付きの物件です。ご希望のお住まいを探しませんか。当社では数多くの不動産情報を取り扱っております。住まい探しは是非私どもにもサポートさせてください。
※地図上に表示される物件の位置は付近住所に所在することを表すものであり、実際の物件所在地とは異なる場合がございます。
| 物件名 | 広島市安佐南区伴東1丁目 | ||
|---|---|---|---|
| 所在地 | 広島県広島市安佐南区伴東1丁目 | ||
| 交通 |
|
||
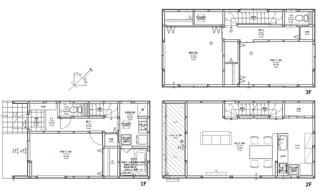
| 間取り/詳細 |
3LDK 1F 7.5洋 浴室 洗面 2F 18.4LDK 収納 3F 8洋 7.5洋 トイレ |
||
| 接道状況 | -(南 公道 25.0m) | ||
| 価格 | 3,980万円 | 主要採光面 | - |
| 建物面積/坪数 | 109.71㎡/ 33.18坪 | 土地面積/坪数 | 103.41㎡/ 31.28坪 |
| 種別/構造 | 新築一戸建/木造 | 築年月(築年数) | 2025年 8月(新築) |
| 階建 | 3階建 | 地目 | - |
| 駐車場/料金 | 有/ 可 | 地勢 | - |
| 私道面積 | - | セットバック | - |
| 都市計画 | 市街化区域 | 用途地域 | 近隣商業 |
| 建ぺい率/容積率 | 80%/300% | 土地権利 | 所有権 |
| 総区画数 | 1戸 | 借地料/借地期間 | -/- |
| 現況 | 完成済み | その他の法令上の制限 | - |
| 取引態様/引渡時期 | 一般媒介/相談 | 建築確認番号 | 第JE25BA1-34-0070号 |
| 設備条件 |
|
||
| 備考 |
木造在来工法 準耐火構造 ベタ基礎 フラット35対応 オール電化住宅 エコキュート IHクッキングヒーター 食器洗浄乾燥機 居室窓Low-Eペアガラス 玄関電気錠システム EV自動車用回路 浴室換気乾燥暖房機 トイレ洗浄便座 伴東小学校 伴中学校 |
||
| QRコード |
このQRコードを読み取ることで、ケータイでも物件情報を確認できます。 |
||






















(※元利均等方式 金利5.00%まで ※返済年数5~50年まで入力できます)
(※ボーナスは年2回で計算しています。1000万円まで入力できます)
