オールハウス株式会社 > 広島市中区江波栄町
ぜひ一度見ていただきたい、「広島市中区江波栄町」です。認定こども園栄光こども園栄光幼稚園が徒歩5分の場所にあります。生活を充実させる利便性が高い新築の戸建て物件です。不動産の購入をご検討しているのであれば、不動産情報を豊富に取り扱っている当社にお任せ下さい。今までよりも快適に暮らせるよう、ご希望に沿った不動産のご紹介をさせていただきます。
※地図上に表示される物件の位置は付近住所に所在することを表すものであり、実際の物件所在地とは異なる場合がございます。
| 物件名 | 広島市中区江波栄町 | ||
|---|---|---|---|
| 所在地 | 広島県広島市中区江波栄町 | ||
| 交通 |
|
||
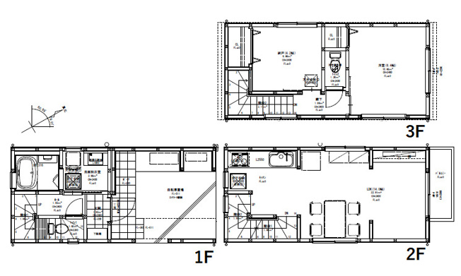
| 間取り/詳細 |
2LDK 1F 浴室 洗面 トイレ 2F 14LDK 3F 6.4洋 4.2納戸 トイレ |
||
| 接道状況 | -(北東 公道 7.9m) | ||
| 価格 | 2,980万円 | 主要採光面 | - |
| 建物面積/坪数 | 78.66㎡/ 23.79坪 | 土地面積/坪数 | 40.55㎡/ 12.26坪 |
| 種別/構造 | 新築一戸建/木造 | 築年月(築年数) | 2025年 8月(新築) |
| 階建 | 3階建 | 地目 | - |
| 駐車場/料金 | 有(1台)/ (車種による) | 地勢 | 平坦 |
| 私道面積 | - | セットバック | - |
| 都市計画 | 市街化区域 | 用途地域 | 第一種住居 |
| 建ぺい率/容積率 | 60%/200% | 土地権利 | 所有権 |
| 総区画数 | 1戸 | 借地料/借地期間 | -/- |
| 現況 | 完成済み | その他の法令上の制限 | - |
| 取引態様/引渡時期 | 一般媒介/相談 | 建築確認番号 | 第JE25BA1-34-0051号 |
| 設備条件 |
|
||
| 備考 |
木造在来工法 準耐火構造 ベタ基礎 オール電化住宅 エコキュート IHクッキングヒーター 食器洗浄乾燥機 居室窓Low-Eペアガラス 玄関電気錠システム EV自動車用回路 浴室換気乾燥暖房機 トイレ洗浄便座 江波小学校 江波中学校 |
||
| QRコード |
このQRコードを読み取ることで、ケータイでも物件情報を確認できます。 |
||






















(※元利均等方式 金利5.00%まで ※返済年数5~50年まで入力できます)
(※ボーナスは年2回で計算しています。1000万円まで入力できます)
