オールハウス株式会社 > 広島市中区江波二本松2丁目No.A
新生活を失敗せず、スタートさせたいならこちらの「広島市中区江波二本松2丁目No.A」はいかがでしょうか。リビングダイニングが18帖以上となっており、友人が集まる場としても充分です。現代の土間は靴の脱ぎ履きや趣味での利用にも役立っています。広島市中区に特化した当社では、多種多様な不動産情報をご用意しております。不動産情報と併せて地域情報もお伝え致しますので、まずはお気軽にお問い合わせください。
※地図上に表示される物件の位置は付近住所に所在することを表すものであり、実際の物件所在地とは異なる場合がございます。
| 物件名 | 広島市中区江波二本松2丁目No.A | ||
|---|---|---|---|
| 所在地 | 広島県広島市中区江波二本松2丁目 | ||
| 交通 |
|
||
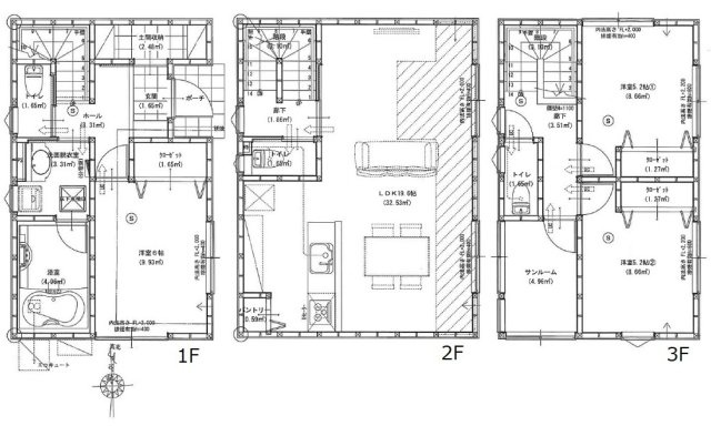
| 間取り/詳細 |
3LDK 1F 6洋 土間収納 2F 19.6LDK トイレ 3F 5.2洋 5.2洋 トイレ サンルーム |
||
| 接道状況 | -(東 私道 4.0m) | ||
| 価格 | 3,780万円 | 主要採光面 | - |
| 建物面積/坪数 | 104.32㎡/ 31.55坪 | 土地面積/坪数 | 83.67㎡/ 25.31坪 |
| 種別/構造 | 新築一戸建/木造 | 築年月(築年数) | 2025年 2月(新築) |
| 階建 | 3階建 | 地目 | - |
| 駐車場/料金 | -/- | 地勢 | 平坦 |
| 私道面積 | - | セットバック | - |
| 都市計画 | 市街化区域 | 用途地域 | 第一種住居 |
| 建ぺい率/容積率 | 60%/160% | 土地権利 | 所有権 |
| 総区画数 | 1戸 | 借地料/借地期間 | -/- |
| 現況 | 完成済み | その他の法令上の制限 | - |
| 取引態様/引渡時期 | 一般媒介/相談 | 建築確認番号 | 第R06認広建セ01174号 |
| 設備条件 |
|
||
| 備考 | こだわりで選びたい方におすすめ。広島市中区エリアで住まいをお探しなら「広島市中区江波二本松2丁目No.A」。日々の暮らしに便利なSpark(スパーク) 江波店(スーパー)まで225mです。これから先、どんなお住まいで生活をしたいですか。あなたの希望にかなうお住まい探しを、ぜひ当社にお任せください。当社では様々な不動産をご用意しております。 | ||
| QRコード |
このQRコードを読み取ることで、ケータイでも物件情報を確認できます。 |
||






















(※元利均等方式 金利5.00%まで ※返済年数5~50年まで入力できます)
(※ボーナスは年2回で計算しています。1000万円まで入力できます)
