オールハウス株式会社 > 安芸郡熊野町中溝5丁目No.7
「安芸郡熊野町中溝5丁目No.7」のここがイチオシ。吹き抜けの開放感が素敵です。こちらの新築戸建てなら、気分爽快に新生活をスタートできます。建物面積30坪以上の物件で、ゆとりある新生活を始めませんか。新生活のスタートに一戸建てをお求めなら、当社までお気軽にご連絡ください。安芸郡熊野町の呉線矢野近くでの住まい探しを、全力でサポートさせていただきます。
※地図上に表示される物件の位置は付近住所に所在することを表すものであり、実際の物件所在地とは異なる場合がございます。
| 物件名 | 安芸郡熊野町中溝5丁目No.7 | ||
|---|---|---|---|
| 所在地 | 広島県安芸郡熊野町中溝5丁目 | ||
| 交通 |
|
||
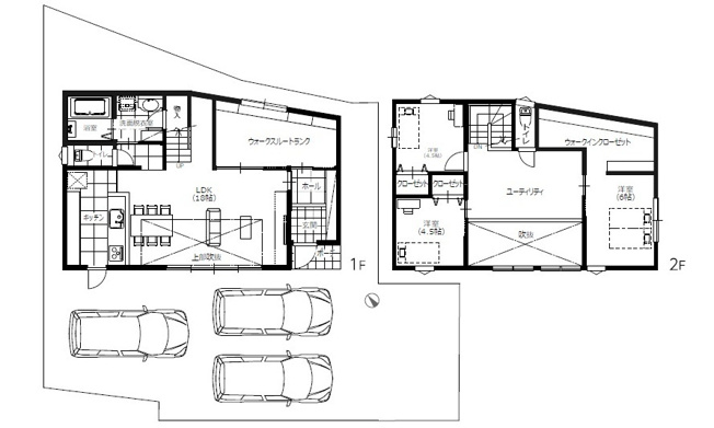
| 間取り/詳細 |
3LDK 1F 18LDK ウォークスルートランク 2F 6洋 4.5洋 4.5洋 WIC ユーティリティ トイレ |
||
| 接道状況 | -(南東 6.0m) | ||
| 価格 | 3,430万円 | 主要採光面 | - |
| 建物面積/坪数 | 112.61㎡/ 34.06坪 | 土地面積/坪数 | 172.24㎡/ 52.10坪 |
| 種別/構造 | 新築一戸建/木造 | 築年月(築年数) | 2025年 10月(新築) |
| 階建 | 2階建 | 地目 | - |
| 駐車場/料金 | -/ 3台可 | 地勢 | - |
| 私道面積 | - | セットバック | - |
| 都市計画 | 市街化区域 | 用途地域 | 第一種住居 |
| 建ぺい率/容積率 | 60%/200% | 土地権利 | 所有権 |
| 総区画数 | 1戸 | 借地料/借地期間 | -/- |
| 現況 | 完成済み | その他の法令上の制限 | - |
| 取引態様/引渡時期 | 一般媒介/相談 | 建築確認番号 | 第広建セ01214号 |
| 設備条件 |
|
||
| 備考 |
高気密・高断熱・高耐震 フラット35S対応 全室断熱サッシ ガルバリウム鋼板屋根 光セラサイディング リビングエアコン 全室照明器具 リビングソファ ダイニングテーブル テレビ台 食器棚 全室カーテン リビング収納 ウォークスルートランク 吹抜け ウォークインクローゼット ユーティリティ 太陽光発電(4.08kw) 熊野第一小学校 熊野中学校 |
||
| QRコード |
このQRコードを読み取ることで、ケータイでも物件情報を確認できます。 |
||






















(※元利均等方式 金利5.00%まで ※返済年数5~50年まで入力できます)
(※ボーナスは年2回で計算しています。1000万円まで入力できます)
