オールハウス株式会社 > 安芸郡熊野町出来庭2丁目No.1
Yショップかめだ屋まで徒歩6分と近場にコンビニがあるのもポイント。日当たりの良い南西側の道路に面している物件です。冬でも暖かく過ごせるオール電化住宅で暮らしませんか。一戸建てをお探しなら、安芸郡熊野町の呉線矢野周辺に強い当社までご連絡ください。信頼できるスタッフが住まい探しをサポート致します。
※地図上に表示される物件の位置は付近住所に所在することを表すものであり、実際の物件所在地とは異なる場合がございます。
| 物件名 | 安芸郡熊野町出来庭2丁目No.1 | ||
|---|---|---|---|
| 所在地 | 広島県安芸郡熊野町出来庭2丁目 | ||
| 交通 |
|
||
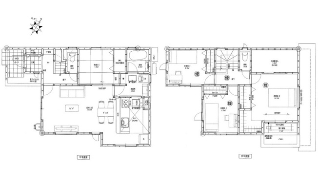
| 間取り/詳細 |
4LDK 1F 18.25LDK 4.5和 2F 8洋 5.2洋 5.2洋 トイレ 小屋裏物入 |
||
| 接道状況 | -(南西 4.0m) | ||
| 価格 | 3,180万円 | 主要採光面 | - |
| 建物面積/坪数 | 102.67㎡/ 31.05坪 | 土地面積/坪数 | 146.01㎡/ 44.16坪 |
| 種別/構造 | 新築一戸建/木造 | 築年月(築年数) | 2024年 10月(新築) |
| 階建 | 2階建 | 地目 | - |
| 駐車場/料金 | -/ 可 | 地勢 | - |
| 私道面積 | - | セットバック | - |
| 都市計画 | 市街化区域 | 用途地域 | 第二種住居 |
| 建ぺい率/容積率 | 60%/160% | 土地権利 | 所有権 |
| 総区画数 | 1戸 | 借地料/借地期間 | -/- |
| 現況 | 完成済み | その他の法令上の制限 | - |
| 取引態様/引渡時期 | 一般媒介/相談 | 建築確認番号 | 第R06認広建セ00504号 |
| 設備条件 |
|
||
| 備考 | バス停まで徒歩3分以内の物件なのでお買い物に役立ちます。スーパーも近いので、お買い物も楽々ですね。日当たりがよく、冬場でも明るい南西側道路に面しています。オール電化住宅は、キッチン周りのお掃除が楽になるので主婦の味方です。一戸建て購入時の不安を、豊富なスタッフが解消いたします。安芸郡熊野町の呉線矢野周辺でマイホームを求めるのであれば、お気軽にお問い合わせください。 | ||
| QRコード |
このQRコードを読み取ることで、ケータイでも物件情報を確認できます。 |
||






















(※元利均等方式 金利5.00%まで ※返済年数5~50年まで入力できます)
(※ボーナスは年2回で計算しています。1000万円まで入力できます)
