オールハウス株式会社 > 広島市西区古江東町No.3
バス停が徒歩3分圏内にあります。コチラの物件は、新築の戸建て物件で設備も充実しています。住みやすい空間の条件の1つに前面道路が6m以上あるところを入れてみては。余裕のある空間が魅力。建物面積30坪以上の一押し物件です。広島市西区にある一戸建てのお問い合わせは、当社が承っております。マイホームの購入を検討しているお客様のサポートを致します。
※地図上に表示される物件の位置は付近住所に所在することを表すものであり、実際の物件所在地とは異なる場合がございます。
| 物件名 | 広島市西区古江東町No.3 | ||
|---|---|---|---|
| 所在地 | 広島県広島市西区古江東町 | ||
| 交通 |
|
||
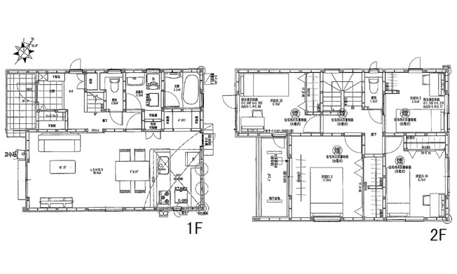
| 間取り/詳細 |
4LDK 1F 18LDK SIC パントリー 2F 7洋 5.29洋 5.29洋 4.5洋 トイレ |
||
| 接道状況 | -(南西 6.2m) | ||
| 価格 | 4,280万円 | 主要採光面 | - |
| 建物面積/坪数 | 100.60㎡/ 30.43坪 | 土地面積/坪数 | 134.75㎡/ 40.76坪 |
| 種別/構造 | 新築一戸建/木造 | 築年月(築年数) | 2024年 10月(新築) |
| 階建 | 2階建 | 地目 | - |
| 駐車場/料金 | -/ 可 | 地勢 | - |
| 私道面積 | - | セットバック | - |
| 都市計画 | 市街化区域 | 用途地域 | 第一種住居 |
| 建ぺい率/容積率 | 60%/200% | 土地権利 | 所有権 |
| 総区画数 | 1戸 | 借地料/借地期間 | -/- |
| 現況 | 完成済み | その他の法令上の制限 | - |
| 取引態様/引渡時期 | 一般媒介/相談 | 建築確認番号 | 第R06認広建セ00436号 |
| 設備条件 |
|
||
| 備考 |
在来工法 施工:トータテハウジング 瑕疵担保保険付 外構付 フラット35S使用可(但し期限内に限ります) カップボードあり 高須小学校 古田中学校 |
||
| QRコード |
このQRコードを読み取ることで、ケータイでも物件情報を確認できます。 |
||






















(※元利均等方式 金利5.00%まで ※返済年数5~50年まで入力できます)
(※ボーナスは年2回で計算しています。1000万円まで入力できます)
