オールハウス株式会社 > フォルム幟町 収益物件
オーナーチェンジ
※地図上に表示される物件の位置は付近住所に所在することを表すものであり、実際の物件所在地とは異なる場合がございます。
| 所在地 | 広島県広島市中区橋本町 | ||
|---|---|---|---|
| 交通 |
|
||
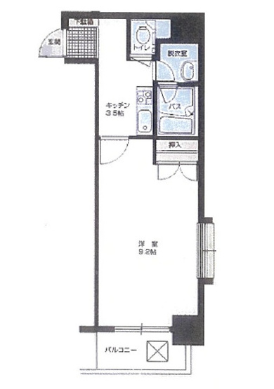
| 間取り/詳細 |
1K 3.5K 9.2洋 |
||
| 価格 | 1,050万円 | 管理費+共益費 | 4,683円 |
| ローン支払い目安 | 2.2万円/月 | 利回り | - |
| 専有面積 | 29.11㎡ | バルコニー面積 | 3.21㎡ |
| 種別/構造 | 中古マンション/鉄筋コンクリート | 築年月(築年数)/方位 | 1999年 6月(築26年)/- |
| 所在階/階建 | 2階/ 10階建 | 地勢 | - |
| 修繕積立金 | 7,250円 | 駐車場/料金 | -/ 空無 |
| 管理組合有無 | - | 管理形態 | 管理会社に全部委託 |
| 管理方式 | 巡回 | 管理会社 | アムス・インターナショナル(株) |
| 棟総戸数 | 55戸 | 用途地域 | 商業 |
| 土地権利 | 所有権 | 国土法届出要否 | 不要 |
| 取引態様 | 一般媒介 | 現状 | 賃貸中 |
| 引渡し | 相談 | 建築確認番号 | - |
| 設備条件 |
|
||
| 備考 |
オーナーチェンジ サブリース契約承継あり 賃料:58,280円(振込手数料は別途オーナー負担) 広島駅・八丁堀へのアクセスも良好 コンビニ徒歩1分 幟町小学校 幟町中学校 |
||
| QRコード |
このQRコードを読み取ることで、ケータイでも物件情報を確認できます。 |
||






















(※元利均等方式 金利5.00%まで ※返済年数5~50年まで入力できます)
(※ボーナスは年2回で計算しています。1000万円まで入力できます)
