オールハウス株式会社 > 広島市安佐南区大町東3丁目
新着情報:広島市安佐南区大町東3丁目の空室情報ならコチラ。日々の暮らしに便利なザ・ビッグ安古市店(スーパー)まで7分で行けます。中古戸建て物件でリーズナブルかつ快適な生活を送りましょう。お引越しをお考えの方は、当社スタッフまでご連絡ください。お問い合わせいただければ、広島市安佐南区の可部線大町付近にある不動産情報をご紹介致します。
※地図上に表示される物件の位置は付近住所に所在することを表すものであり、実際の物件所在地とは異なる場合がございます。
| 物件名 | 広島市安佐南区大町東3丁目 | ||
|---|---|---|---|
| 所在地 | 広島県広島市安佐南区大町東3丁目 | ||
| 交通 |
|
||
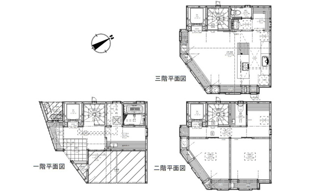
| 間取り/詳細 |
1LDK 1F ランドリールーム SIC 車庫 2F 20.3洋 トイレ 3F 18.3LDK 1.5パントリー トイレ |
||
| 接道状況 | -(東 私道 4.0m)(南 公道 2.1m) | ||
| 価格 | 4,100万円 | 主要採光面 | - |
| 建物面積/坪数 | 103.77㎡/ 31.39坪 | 土地面積/坪数 | 76.60㎡/ 23.17坪 |
| 種別/構造 | 中古一戸建/木造 | 築年月(築年数) | 2022年 7月(築3年) |
| 階建 | 3階建 | 地目 | - |
| 駐車場/料金 | 有/ 可 | 地勢 | - |
| 私道面積 | - | セットバック | - |
| 都市計画 | 市街化区域 | 用途地域 | 第一種住居 |
| 建ぺい率/容積率 | 60%/160% | 土地権利 | 所有権 |
| 総区画数 | 1戸 | 借地料/借地期間 | -/- |
| 現況 | 空家 | その他の法令上の制限 | - |
| 取引態様/引渡時期 | 一般媒介/相談 | 建築確認番号 | - |
| 設備条件 |
|
||
| 備考 | こだわりで選びたい方におすすめ。広島市安佐南区エリアで住まいをお探しなら「広島市安佐南区大町東3丁目」。駅が2駅利用できるので利便性の高い物件です。リビングダイニングが18帖以上あり、オープンな雰囲気でゆったりとくつろげます。建物面積は30坪以上で開放感があります。住みやすい環境が整った広島市安佐南区で一戸建てを購入するのであれば、豊富な不動産情報を扱う当社のスタッフまでお問い合わせください。 | ||
| QRコード |
このQRコードを読み取ることで、ケータイでも物件情報を確認できます。 |
||






















(※元利均等方式 金利5.00%まで ※返済年数5~50年まで入力できます)
(※ボーナスは年2回で計算しています。1000万円まで入力できます)
