オールハウス株式会社 > 広島市安佐北区落合2丁目No.2
こだわりポイント満載の広島市安佐北区落合2丁目No.2。近くにはファミリーマート 広島落合店(徒歩3分)がありちょっとした買い物に便利です。大人数でも不自由なく楽しめる、15帖以上のLDKです。当社スタッフは不動産に詳しく、地域にも精通しているので、住まい探しに役立つこと間違いありません。まずはお気軽にご連絡ください。
※地図上に表示される物件の位置は付近住所に所在することを表すものであり、実際の物件所在地とは異なる場合がございます。
| 物件名 | 広島市安佐北区落合2丁目No.2 | ||
|---|---|---|---|
| 所在地 | 広島県広島市安佐北区落合2丁目 | ||
| 交通 |
|
||
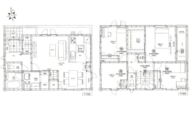
| 間取り/詳細 |
3LDK 1F 17.09LDK SIC 2F 7.03洋 5.29洋 4.96洋 4.14納戸 WIC トイレ |
||
| 接道状況 | 角地(北 公道 5.9m)(東 公道 5.9m) | ||
| 価格 | 3,490万円 | 主要採光面 | - |
| 建物面積/坪数 | 100.26㎡/ 30.32坪 | 土地面積/坪数 | 103.71㎡/ 31.37坪 |
| 種別/構造 | 新築一戸建/木造 | 築年月(築年数) | 2024年 12月(新築) |
| 階建 | 2階建 | 地目 | - |
| 駐車場/料金 | -/- | 地勢 | - |
| 私道面積 | - | セットバック | - |
| 都市計画 | 市街化区域 | 用途地域 | 第一種住居 |
| 建ぺい率/容積率 | 60%/200% | 土地権利 | 所有権 |
| 総区画数 | 1戸 | 借地料/借地期間 | -/- |
| 現況 | 完成済み | その他の法令上の制限 | - |
| 取引態様/引渡時期 | 一般媒介/相談 | 建築確認番号 | 第R06認広建セ00573号 |
| 設備条件 |
|
||
| 備考 |
在来工法 施工:タカケン 外構付 瑕疵担保保険付 フラット35S金利Aプラン使用可能(但し、期限内に限る) カップボードあり 落合東小学校 落合中学校 |
||
| QRコード |
このQRコードを読み取ることで、ケータイでも物件情報を確認できます。 |
||






















(※元利均等方式 金利5.00%まで ※返済年数5~50年まで入力できます)
(※ボーナスは年2回で計算しています。1000万円まで入力できます)
