オールハウス株式会社 > 広島市佐伯区皆賀1丁目No.3
こだわりポイント満載の広島市佐伯区皆賀1丁目No.3。送り迎えも楽々。ひろみ幼稚園まで徒歩3分です。あったらうれしい、食器棚が備え付けです。ゆったりとした間取りが嬉しい、15帖以上のLDKとなっております。住まい探しをするなら、信頼と実績のある当社にご用命ください。人生に一度の大きな買い物が失敗しないように、しっかりとサポート致します。
※地図上に表示される物件の位置は付近住所に所在することを表すものであり、実際の物件所在地とは異なる場合がございます。
| 物件名 | 広島市佐伯区皆賀1丁目No.3 | ||
|---|---|---|---|
| 所在地 | 広島県広島市佐伯区皆賀1丁目 | ||
| 交通 |
|
||
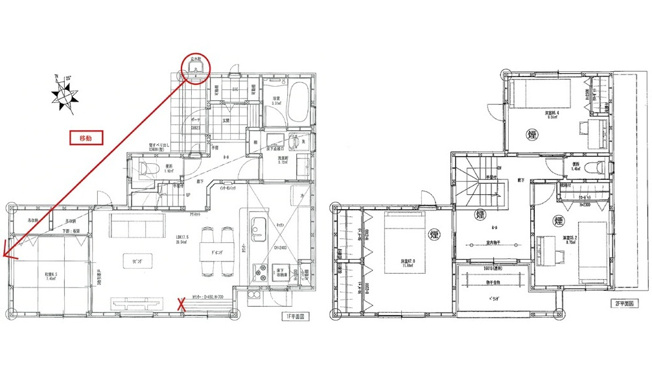
| 間取り/詳細 |
4LDK 1F 17.5LDK 4.5和 SIC 2F 7洋 5.4洋 5.2洋 トイレ |
||
| 接道状況 | -(北西 私道 5.2m) | ||
| 価格 | 4,980万円 | 主要採光面 | - |
| 建物面積/坪数 | 104.33㎡/ 31.55坪 | 土地面積/坪数 | 149.70㎡/ 45.28坪 |
| 種別/構造 | 新築一戸建/木造 | 築年月(築年数) | 2025年 1月(新築) |
| 階建 | 2階建 | 地目 | - |
| 駐車場/料金 | -/- | 地勢 | - |
| 私道面積 | - | セットバック | - |
| 都市計画 | 市街化区域 | 用途地域 | 第二種中高層住居専用 |
| 建ぺい率/容積率 | 60%/200% | 土地権利 | 所有権 |
| 総区画数 | 1戸 | 借地料/借地期間 | -/- |
| 現況 | 完成済み | その他の法令上の制限 | - |
| 取引態様/引渡時期 | 一般媒介/相談 | 建築確認番号 | 第R06認広建セ01128号 |
| 設備条件 |
|
||
| 備考 |
工法:在来工法 施工:トータテハウジング 外構付 瑕疵担保保険付 フラット35S使用可能(但し、期限内に限ります) カップボード・エネファームあり 五日市東小学校 五日市中学校 |
||
| QRコード |
このQRコードを読み取ることで、ケータイでも物件情報を確認できます。 |
||






















(※元利均等方式 金利5.00%まで ※返済年数5~50年まで入力できます)
(※ボーナスは年2回で計算しています。1000万円まで入力できます)
