オールハウス株式会社 > 広島市安佐南区伴北7丁目
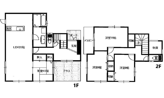
独立した和室がリビングの隣に位置しており、生活導線も快適です。吹き抜けの開放感が上品さを演出しています。前面道路6m以上は確保しているので車の出し入れもラクラクです。20帖以上もあるリビングならお客様が多くても安心です。不動産の購入は人生の中でも大きなお買い物だと言われています。そんな大きなお買い物で失敗しないためにも、購入をお考えの際は不動産のプロである当社スタッフにお任せください。
10月2日 値下げ
※地図上に表示される物件の位置は付近住所に所在することを表すものであり、実際の物件所在地とは異なる場合がございます。
| 物件名 | 広島市安佐南区伴北7丁目 | ||
|---|---|---|---|
| 所在地 | 広島県広島市安佐南区伴北7丁目 | ||
| 交通 |
|
||
| 間取り/詳細 |
4LDK 1F 20LDK 4.5和 2F 7.5洋 6洋 6洋 トイレ |
||
| 接道状況 | 一方(北 公道 6.0m) | ||
| 価格 | 1,980万円 | 主要採光面 | - |
| 建物面積/坪数 | 116.96㎡/ 35.38坪 | 土地面積/坪数 | 174.64㎡/ 52.82坪 |
| 種別/構造 | 中古一戸建/木造 | 築年月(築年数) | 2012年 9月(築13年) |
| 階建 | 2階建 | 地目 | - |
| 駐車場/料金 | 有/ 可 | 地勢 | - |
| 私道面積 | - | セットバック | - |
| 都市計画 | 市街化区域 | 用途地域 | 第一種低層住居専用 |
| 建ぺい率/容積率 | 50%/100% | 土地権利 | 所有権 |
| 総区画数 | 1戸 | 借地料/借地期間 | -/- |
| 現況 | 居住中 | その他の法令上の制限 | - |
| 取引態様/引渡時期 | 一般媒介/相談 | 建築確認番号 | - |
| 設備条件 |
|
||
| 備考 |
オール電化 平成24年9月築 太陽光パネル7.32kW設置 令和4年外壁塗装済み 造付カップボード・TVボード付 玄関上部には吹抜けあり |
||
| QRコード |
このQRコードを読み取ることで、ケータイでも物件情報を確認できます。 |
||


















(※元利均等方式 金利5.00%まで ※返済年数5~50年まで入力できます)
(※ボーナスは年2回で計算しています。1000万円まで入力できます)
