オールハウス株式会社 > 広島市佐伯区海老園1丁目
ぜひ一度見ていただきたい、「広島市佐伯区海老園1丁目」です。広くて嬉しい建物面積も30坪以上あります。スーパーが近くにあるので、買い物が楽です。太陽光発電システム付き物件なら、光熱費を下げる事が出来ます。広島市佐伯区や広島電鉄宮島線佐伯区役所前付近での住まい探しなら、当社スタッフまでご連絡下さい。お客様に合った一戸建てをご紹介させていただきます。
※地図上に表示される物件の位置は付近住所に所在することを表すものであり、実際の物件所在地とは異なる場合がございます。
| 物件名 | 広島市佐伯区海老園1丁目 | ||
|---|---|---|---|
| 所在地 | 広島県広島市佐伯区海老園1丁目 | ||
| 交通 |
|
||
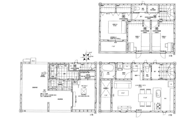
| 間取り/詳細 |
3LDK 1F アウトドアストレージ SIC 土間収納 車庫 2F 17.5LDK 浴室 洗面 トイレ 3F 6.38洋 6洋 6洋 トイレ |
||
| 接道状況 | -(東 私道 4.0m) | ||
| 価格 | 4,480万円 | 主要採光面 | - |
| 建物面積/坪数 | 135.06㎡/ 40.85坪 | 土地面積/坪数 | 81.13㎡/ 24.54坪 |
| 種別/構造 | 新築一戸建/木造 | 築年月(築年数) | 2025年 11月(新築) |
| 階建 | 3階建 | 地目 | - |
| 駐車場/料金 | -/ 2台可(車種による) | 地勢 | - |
| 私道面積 | - | セットバック | - |
| 都市計画 | 市街化区域 | 用途地域 | 第一種住居 |
| 建ぺい率/容積率 | 60%/160% | 土地権利 | 所有権 |
| 総区画数 | 1戸 | 借地料/借地期間 | -/- |
| 現況 | 完成済み | その他の法令上の制限 | - |
| 取引態様/引渡時期 | 一般媒介/相談 | 建築確認番号 | 第R07認広建セ00150号 |
| 設備条件 |
|
||
| 備考 |
3LDK 駐車2台可(車種による) 太陽光発電システム+蓄電池完備 五日市南小学校 五日市南中学校 |
||
| QRコード |
このQRコードを読み取ることで、ケータイでも物件情報を確認できます。 |
||






















(※元利均等方式 金利5.00%まで ※返済年数5~50年まで入力できます)
(※ボーナスは年2回で計算しています。1000万円まで入力できます)
