オールハウス株式会社 > 広島市安芸区中野6丁目 セルリアンステージ中野六丁目No.3
新生活を失敗せず、スタートさせたいならこちらの「広島市安芸区中野6丁目 セルリアンステージ中野六丁目No.3」はいかがでしょうか。複層ガラスは窓周りの結露を防ぎ、カビの発生を抑えます。一生に一度のマイホーム探しは、ぜひ新築戸建てで。キッチンにIHクッキングヒーターが付いています。広島市安芸区エリアや山陽本線中野東付近で、お客様のご希望条件に合った一戸建てをご紹介します。まずはお問い合わせください。
※地図上に表示される物件の位置は付近住所に所在することを表すものであり、実際の物件所在地とは異なる場合がございます。
| 物件名 | 広島市安芸区中野6丁目 セルリアンステージ中野六丁目No.3 | ||
|---|---|---|---|
| 所在地 | 広島県広島市安芸区中野6丁目 | ||
| 交通 |
|
||
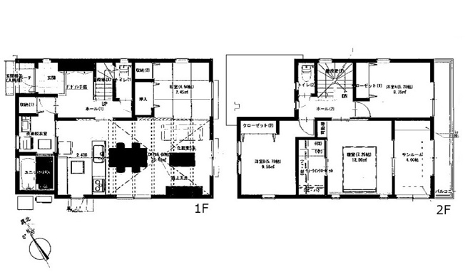
| 間取り/詳細 |
4LDK 1F LDK 4.5和 2F 7.25洋 5.78洋 5.28洋 4サンルーム WIC トイレ |
||
| 接道状況 | -(西 6.0m) | ||
| 価格 | 3,480万円 | 主要採光面 | - |
| 建物面積/坪数 | 106.63㎡/ 32.25坪 | 土地面積/坪数 | 138.75㎡/ 41.97坪 |
| 種別/構造 | 新築一戸建/木造 | 築年月(築年数) | 2025年 11月(予定) |
| 階建 | 2階建 | 地目 | - |
| 駐車場/料金 | -/ 並列3台可(車種による) | 地勢 | - |
| 私道面積 | - | セットバック | - |
| 都市計画 | 市街化区域 | 用途地域 | 第一種住居 |
| 建ぺい率/容積率 | 60%/200% | 土地権利 | 所有権 |
| 総区画数 | 1戸 | 借地料/借地期間 | -/- |
| 現況 | 未完成 | その他の法令上の制限 | - |
| 取引態様/引渡時期 | 一般媒介/相談 | 建築確認番号 | 第R07認広建セ00234号 |
| 設備条件 |
|
||
| 備考 |
省エネ基準適合住宅 外壁光セラ(KMEW) オール電化(エコキュート) 制振ダンパー(住友ゴムMAMORY) フラット35S(金利Bプラン)対応 瑕疵担保責任保険(まもりすまい保険) IHクッキングヒーター 食器洗乾燥機 カップボード 浴室乾燥機能 アルミ樹脂複合サッシ オールLow-Eペアガラス 1階・2階ウォシュレットトイレ 玄関ドア電子錠 梁出し天井(1階LD) ウォークインクローゼット(2階主寝室) 中野東小学校 瀬野川中学校 |
||
| QRコード |
このQRコードを読み取ることで、ケータイでも物件情報を確認できます。 |
||






















(※元利均等方式 金利5.00%まで ※返済年数5~50年まで入力できます)
(※ボーナスは年2回で計算しています。1000万円まで入力できます)
