オールハウス株式会社 > 広島市安芸区中野6丁目No.4
オール電化住宅なら冬でも暖かく過ごすことができます。こちらの土地は前面道路6m以上です。人気のIHキッチンです。建物面積は30坪以上で開放感があります。広島市安芸区の山陽本線中野東付近で新生活を始めましょう。当社では、マイホームに相応しい一戸建て情報も数多くご用意しております。
※地図上に表示される物件の位置は付近住所に所在することを表すものであり、実際の物件所在地とは異なる場合がございます。
| 物件名 | 広島市安芸区中野6丁目No.4 | ||
|---|---|---|---|
| 所在地 | 広島県広島市安芸区中野6丁目 | ||
| 交通 |
|
||
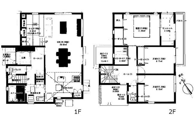
| 間取り/詳細 |
3LDK 1F 18LDK 4ホビールーム 2F 7洋 5.28洋 5.28洋 2.62サンルーム 1.5ファミリークローク トイレ |
||
| 接道状況 | -(北西 6.0m) | ||
| 価格 | 3,280万円 | 主要採光面 | - |
| 建物面積/坪数 | 106.81㎡/ 32.31坪 | 土地面積/坪数 | 133.24㎡/ 40.30坪 |
| 種別/構造 | 新築一戸建/木造 | 築年月(築年数) | 2025年 11月(新築) |
| 階建 | 2階建 | 地目 | - |
| 駐車場/料金 | -/ 2台可(車種による) | 地勢 | - |
| 私道面積 | - | セットバック | - |
| 都市計画 | 市街化区域 | 用途地域 | 第一種住居 |
| 建ぺい率/容積率 | 60%/200% | 土地権利 | 所有権 |
| 総区画数 | 1戸 | 借地料/借地期間 | -/- |
| 現況 | 完成済み | その他の法令上の制限 | - |
| 取引態様/引渡時期 | 一般媒介/相談 | 建築確認番号 | 第R07認広建セ00235号 |
| 設備条件 |
|
||
| 備考 |
省エネ基準適合住宅 外壁光セラ(KMEW) オール電化(エコキュート) 制振ダンパー(住友ゴムMAMORY) フラット35S(金利Bプラン)対応 瑕疵担保責任保険(まもりすまい保険) IHクッキングヒーター 食器洗乾燥機 カップボード 浴室乾燥機能 アルミ樹脂複合サッシ オールLow-Eペアガラス 1階・2階ウォシュレットトイレ 玄関ドア電子錠 パーティーキッチン ホビールーム(1階リビング・4帖相当) 中野東小学校 瀬野川中学校 |
||
| QRコード |
このQRコードを読み取ることで、ケータイでも物件情報を確認できます。 |
||






















(※元利均等方式 金利5.00%まで ※返済年数5~50年まで入力できます)
(※ボーナスは年2回で計算しています。1000万円まで入力できます)
