オールハウス株式会社 > 広島市佐伯区五日市中央3丁目No.4
ゆったりとくつろぐことの出来る、建物面積25坪以上の物件です。新しい生活に心機一転、新築の戸建て物件はいかがでしょうか。何世代にも受け継ぐことができる長期優良住宅はいかがですか。複層ガラスは室内の温度を逃がさず、冬場でも節約した生活を送ることができます。お住まいは、ご自身のライフスタイルや好みに合わせたものがいいですよね。素敵なゆとりある生活を送りましょう。不動産を探すなら、当社にお任せください。
10月17日 値下げ
※地図上に表示される物件の位置は付近住所に所在することを表すものであり、実際の物件所在地とは異なる場合がございます。
| 物件名 | 広島市佐伯区五日市中央3丁目No.4 | ||
|---|---|---|---|
| 所在地 | 広島県広島市佐伯区五日市中央3丁目 | ||
| 交通 |
|
||
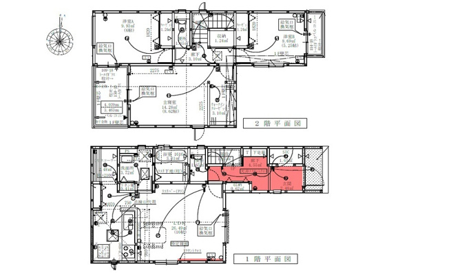
| 間取り/詳細 |
3LDK 1F 16LDK SIC ミセスコーナー 2F 8.62洋 6洋 5.25洋 WIC トイレ |
||
| 接道状況 | -(東 公道 4.4m) | ||
| 価格 | 3,980万円 | 主要採光面 | - |
| 建物面積/坪数 | 96.88㎡/ 29.3坪 | 土地面積/坪数 | 105.79㎡/ 32.00坪 |
| 種別/構造 | 新築一戸建/木造 | 築年月(築年数) | 2025年 9月(新築) |
| 階建 | 2階建 | 地目 | - |
| 駐車場/料金 | -/ 2台可 | 地勢 | - |
| 私道面積 | - | セットバック | - |
| 都市計画 | 市街化区域 | 用途地域 | 第一種住居 |
| 建ぺい率/容積率 | 60%/168% | 土地権利 | 所有権 |
| 総区画数 | 1戸 | 借地料/借地期間 | -/- |
| 現況 | 完成済み | その他の法令上の制限 | - |
| 取引態様/引渡時期 | 一般媒介/相談 | 建築確認番号 | 第R07SHC108194号 |
| 設備条件 |
|
||
| 備考 |
設計・建設性能評価書取得 耐震等級3 フラット35S・金利Aプラン オール電化 適合証明取得代別途要93,500円(税込) オールペアガラス(アルミ樹脂複合) 地盤保証20年 長期優良住宅取得予定 引渡後無料点検(6ヶ月・2年・5年) 五日市中央小学校 五日市中学校 |
||
| QRコード |
このQRコードを読み取ることで、ケータイでも物件情報を確認できます。 |
||






















(※元利均等方式 金利5.00%まで ※返済年数5~50年まで入力できます)
(※ボーナスは年2回で計算しています。1000万円まで入力できます)
