オールハウス株式会社 > 安芸郡府中町鹿籠2丁目No.A
バス停が徒歩3分圏内にあります。生活を充実させる利便性が高い新築の戸建て物件です。きれいで使い勝手の良いシステムキッチン付きの物件になります。スーパーが近くにあるので、買い忘れがあっても困ることはありません。住んだことの無い場所で不動産をお探しなら、当社にお任せください。地元を知り尽くしたスタッフがあなたのサポートを致します。ぜひご検討ください。
画像をクリックして視点を操作
※地図上に表示される物件の位置は付近住所に所在することを表すものであり、実際の物件所在地とは異なる場合がございます。
| 物件名 | 安芸郡府中町鹿籠2丁目No.A | ||
|---|---|---|---|
| 所在地 | 広島県安芸郡府中町鹿籠2丁目 | ||
| 交通 |
|
||
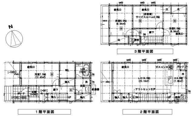
| 間取り/詳細 |
3LDK 1F 7.5洋 WCL 2F 14LD 4.6K トイレ 3F 6洋 6洋 トイレ 6サービスルーム |
||
| 接道状況 | -(北西 公道 間口 5.7m) | ||
| 価格 | 4,750万円 | 主要採光面 | - |
| 建物面積/坪数 | 117.99㎡/ 35.69坪 | 土地面積/坪数 | 86.28㎡/ 26.09坪 |
| 種別/構造 | 新築一戸建/木造 | 築年月(築年数) | 2026年 1月(新築) |
| 階建 | 3階建 | 地目 | - |
| 駐車場/料金 | 有/ 可 | 地勢 | 平坦 |
| 私道面積 | - | セットバック | - |
| 都市計画 | 市街化区域 | 用途地域 | 第一種住居 |
| 建ぺい率/容積率 | 60%/200% | 土地権利 | 所有権 |
| 総区画数 | 1戸 | 借地料/借地期間 | -/- |
| 現況 | 完成済み | その他の法令上の制限 | - |
| 取引態様/引渡時期 | 一般媒介/相談 | 建築確認番号 | 第R07認広建セ00332号 |
| 設備条件 |
|
||
| 備考 | ぜひ一度見ていただきたい、「安芸郡府中町鹿籠2丁目No.A」です。送り迎えも楽々。府中南幼稚園まで徒歩7分です。全居室が洋室なので、お掃除の手間も省くことができます。新生活のスタートに一戸建てをお求めなら、当社までお気軽にご連絡ください。安芸郡府中町の山陽本線向洋近くでの住まい探しを、全力でサポートさせていただきます。 | ||
| QRコード |
このQRコードを読み取ることで、ケータイでも物件情報を確認できます。 |
||






















(※元利均等方式 金利5.00%まで ※返済年数5~50年まで入力できます)
(※ボーナスは年2回で計算しています。1000万円まで入力できます)
