オールハウス株式会社 > 広島市安佐南区相田3丁目 武田山
「広島市安佐南区相田3丁目 武田山」のここがイチオシ。内装リフォーム後にお引渡しのすてきな物件です。家庭菜園ができるので、家族全員で家庭菜園を楽しむことができます。全居室6帖以上ですので、開放感のある演出ができます。当社はお客様が快適に暮らせるよう、住まい探しのサポートをしております。ご希望の条件があれば、当社スタッフにお聞かせください。
※地図上に表示される物件の位置は付近住所に所在することを表すものであり、実際の物件所在地とは異なる場合がございます。
| 物件名 | 広島市安佐南区相田3丁目 武田山 | ||
|---|---|---|---|
| 所在地 | 広島県広島市安佐南区相田3丁目 | ||
| 交通 |
|
||
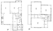
| 間取り/詳細 |
3LDK 1F LDK 6洋 2F 6洋 6和 |
||
| 接道状況 | -(北 公道 6.1m) | ||
| 価格 | 1,380万円 | 主要採光面 | - |
| 建物面積/坪数 | 67.15㎡/ 20.31坪 | 土地面積/坪数 | 107.86㎡/ 32.62坪 |
| 種別/構造 | 中古一戸建/木造 | 築年月(築年数) | 1975年 1月(築50年) |
| 階建 | 2階建 | 地目 | - |
| 駐車場/料金 | 有(1台)/- | 地勢 | - |
| 私道面積 | - | セットバック | - |
| 都市計画 | 市街化区域 | 用途地域 | 第一種低層住居専用 |
| 建ぺい率/容積率 | 50%/100% | 土地権利 | 所有権 |
| 総区画数 | 1戸 | 借地料/借地期間 | -/- |
| 現況 | 空家 | その他の法令上の制限 | - |
| 取引態様/引渡時期 | 一般媒介/相談 | 建築確認番号 | - |
| 設備条件 |
|
||
| 備考 |
2025年9月リフォーム完了予定 お庭付で家庭菜園も楽しめます 閑静で緑豊かな住宅地内につき、落ち着きのある暮らしが 実現できます 目の前には広い公園(武田山公園)があり、 子育て環境良好で風通し抜群 セブンイレブン広島相田2丁目店徒歩14分 フレスタ相田店徒歩22分 ほうりん安幼稚園徒歩10分 安小学校 安西中学校 |
||
| QRコード |
このQRコードを読み取ることで、ケータイでも物件情報を確認できます。 |
||






















(※元利均等方式 金利5.00%まで ※返済年数5~50年まで入力できます)
(※ボーナスは年2回で計算しています。1000万円まで入力できます)
