オールハウス株式会社 > 広島市安芸区船越2丁目No.北 小請田
新生活を失敗せず、スタートさせたいならこちらの「広島市安芸区船越2丁目No.北 小請田」はいかがでしょうか。新築戸建てはみんなの夢です。LDK15帖以上の物件です。2台駐車可能です。広島市安芸区にあるこちらの一戸建てに関して、何かご不明な点などがございましたら、ぜひお問い合わせ下さい。内覧予約なども承っております。
※地図上に表示される物件の位置は付近住所に所在することを表すものであり、実際の物件所在地とは異なる場合がございます。
| 物件名 | 広島市安芸区船越2丁目No.北 小請田 | ||
|---|---|---|---|
| 所在地 | 広島県広島市安芸区船越2丁目 | ||
| 交通 |
|
||
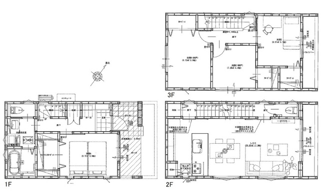
| 間取り/詳細 |
4LDK 1F 5.9洋 浴室 洗面 WIC 2F 17.3LDK トイレ 3F 5.9洋 5.1洋 4.4洋 WIC |
||
| 接道状況 | -(北東 公道 4.2m) | ||
| 価格 | 2,980万円 | 主要採光面 | - |
| 建物面積/坪数 | 102.46㎡/ 30.99坪 | 土地面積/坪数 | 82.81㎡/ 25.04坪 |
| 種別/構造 | 新築一戸建/木造 | 築年月(築年数) | 2024年 3月(新築) |
| 階建 | 3階建 | 地目 | - |
| 駐車場/料金 | 有(2台)/- | 地勢 | - |
| 私道面積 | - | セットバック | - |
| 都市計画 | 市街化区域 | 用途地域 | 第二種中高層住居専用 |
| 建ぺい率/容積率 | 60%/200% | 土地権利 | 所有権 |
| 総区画数 | 1戸 | 借地料/借地期間 | -/- |
| 現況 | 完成済み | その他の法令上の制限 | - |
| 取引態様/引渡時期 | 一般媒介/相談 | 建築確認番号 | 第R05認広建セ01514号 |
| 設備条件 |
|
||
| 備考 |
オール電化 船越小学校 船越中学校 |
||
| QRコード |
このQRコードを読み取ることで、ケータイでも物件情報を確認できます。 |
||






















(※元利均等方式 金利5.00%まで ※返済年数5~50年まで入力できます)
(※ボーナスは年2回で計算しています。1000万円まで入力できます)
