オールハウス株式会社 > ダイアパレス加古町
近くにはローソン 広島中島町店(徒歩3分)がありちょっとした買い物に便利です。バルコニーが付いています。オープンな雰囲気でゆったりとくつろげる、12帖以上のLDKとなっております。不動産のことで確認したいことがあるなら、メール又はお電話にてご連絡ください。当社は豊富な経験と知識を持っているので、丁寧にお答えします。
※地図上に表示される物件の位置は付近住所に所在することを表すものであり、実際の物件所在地とは異なる場合がございます。
| 物件名 | ダイアパレス加古町 | ||
|---|---|---|---|
| 所在地 | 広島県広島市中区加古町 | ||
| 交通 |
|
||
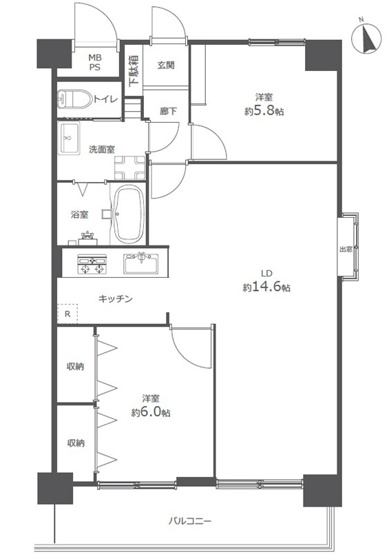
| 間取り/詳細 |
2LDK 約14.6LD K 約6洋 約5.8洋 |
||
| 価格 | 2,199万円 | 管理費+共益費 | 11,800円 |
| 専有面積 | 63.00㎡ | バルコニー面積 | 9.45㎡ |
| 種別/構造 | 中古マンション/鉄骨鉄筋コンクリート | 築年月(築年数)/方位 | 1986年 9月(築39年)/- |
| 所在階/階建 | 4階/ 8階建 | 地勢 | 平坦 |
| 修繕積立金 | 17,600円 | 駐車場/料金 | -/ 空無 20,000〜25,000円/月 |
| 管理組合有無 | - | 管理形態 | 管理会社に全部委託 |
| 管理方式 | 日勤 | 管理会社 | (株)東急コミュニティー |
| 棟総戸数 | 27戸 | 用途地域 | 近隣商業 |
| 土地権利 | 所有権 | 国土法届出要否 | 不要 |
| 取引態様 | 一般媒介 | 現状 | 空家 |
| 引渡し | 相談 | 建築確認番号 | - |
| 設備条件 |
|
||
| 備考 |
2025年7月リフォーム完了:システムキッチン・ユニットバス・洗面化粧台・洗濯機防水パン・ 温水洗浄機能付トイレ・建具・玄関収納新規交換、エアコン先行配管工事実施、 浴室乾燥機・LEDセンサーライト・LEDダウンライト新規設置、LEDシーリングライト新規取付、 フローリング・クロス張替、カーテンレール交換、ハウスクリーニング他 住宅ローン控除・フラット35適合 あんしん既存住宅売買瑕疵保険加入 中島小学校 吉島中学校 |
||
| QRコード |
このQRコードを読み取ることで、ケータイでも物件情報を確認できます。 |
||






















(※元利均等方式 金利5.00%まで ※返済年数5~50年まで入力できます)
(※ボーナスは年2回で計算しています。1000万円まで入力できます)
