オールハウス株式会社 > エバーグリーン江波山
こだわりで選びたい方におすすめ。広島市中区エリアで住まいをお探しなら「エバーグリーン江波山」。エアコンを備え付けているので、室内環境を快適にすることができますよ。サンルームなら、全面景色の良い空間で過ごす事が出来ます。不動産のことでお悩みなら、先ずは当社をお尋ねください。経験豊富なプロのスタッフがお客様のお悩みを解消いたします。ご連絡はメール又はお電話にてお待ちしております。
10月10日 値下げ
※地図上に表示される物件の位置は付近住所に所在することを表すものであり、実際の物件所在地とは異なる場合がございます。
| 物件名 | エバーグリーン江波山 | ||
|---|---|---|---|
| 所在地 | 広島県広島市中区江波南2丁目 | ||
| 交通 |
|
||
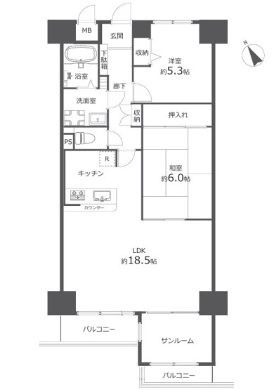
| 間取り/詳細 |
2LDK 約18.5LDK 約6和 約5.3洋 サンルーム |
||
| 価格 | 2,099万円 | 管理費+共益費 | 6,600円 |
| 専有面積 | 74.18㎡ | バルコニー面積 | 6.64㎡ |
| 種別/構造 | 中古マンション/鉄骨鉄筋コンクリート | 築年月(築年数)/方位 | 1986年 8月(築39年)/- |
| 所在階/階建 | 3階/ 13階建 | 地勢 | - |
| 修繕積立金 | 8,160円 | 駐車場/料金 | -/ 近隣確保済 12,000円/月 |
| 管理組合有無 | - | 管理形態 | 管理会社に全部委託 |
| 管理方式 | 日勤 | 管理会社 | 日本ハウズイング(株) |
| 棟総戸数 | 172戸 | 用途地域 | 第一種住居 |
| 土地権利 | 所有権 | 国土法届出要否 | 不要 |
| 取引態様 | 一般媒介 | 現状 | 空家 |
| 引渡し | 相談 | 建築確認番号 | - |
| 設備条件 |
|
||
| 備考 |
2025年7月リフォーム完了:システムキッチン・ユニットバス・洗面化粧台・ 洗濯機防水パン・温水洗浄機能付トイレ・建具・玄関収納新規交換、 浴室乾燥機・LEDセンサーライト・LEDダウンライト新規設置、LEDシーリングライト新規取付、 フローリング・クロス張替、エアコン先行配管工事実施 カーテンレール交換、ハウスクリーニング他 住宅ローン控除・フラット35適合 あんしん既存住宅売買瑕疵保険加入 江波小学校 江波中学校 |
||
| QRコード |
このQRコードを読み取ることで、ケータイでも物件情報を確認できます。 |
||
| 所在階 | 価格 | 管理費 | 間取り | 専有面積 | 詳細 | 検討リスト |
|---|---|---|---|---|---|---|
| 2 | 1,680万円 | 6,300円 | 1LDK | 66.98㎡ | 詳細を見る | 追加する |






















(※元利均等方式 金利5.00%まで ※返済年数5~50年まで入力できます)
(※ボーナスは年2回で計算しています。1000万円まで入力できます)
